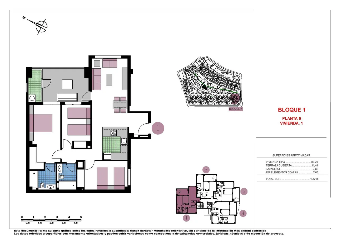
Nowo wybudowane apartamenty i bungalowy w Mil Palmeras Nowoczesny kompleks mieszkaniowy w doskonałej lokalizacji Odkryj oszałamiający nowy kompleks mieszkaniowy w uroczej nadmorskiej okolicy Mil Palmeras, oferujący wybór wysokiej jakości apartamentów i bungalowów zaprojektowanych z myślą o nowoczesnych standardach życia. Położony zaledwie 600 metrów od piaszczystych plaż Mil Palmeras, kompleks ten łączy w sobie komfort, styl i wygodę. Przestronne i stylowe apartamenty i bungalowy Do wyboru są apartamenty z 2 lub 3 sypialniami, każdy z 2 łazienkami i przestronnymi tarasami. Alternatywnie można zdecydować się na bungalowy z 2 sypialniami i 2 łazienkami, dostępne w parterowych jednostkach z prywatnymi ogrodami lub na najwyższym piętrze z ekskluzywnymi solariami. Wysokiej jakości wykończenia dla nowoczesnego stylu życia Osiedle oferuje wyjątkowe funkcje i wykończenia: Zewnętrzna stolarka PCV z przegrodą termiczną i podwójnie oszklonymi oknami „Climalit” o niskiej emisyjności. Wzmocnione drzwi wejściowe dla większego bezpieczeństwa. Łazienki wyposażone w toaletki, lustra i nowoczesną armaturę. Wbudowane szafy z wewnętrznym oświetleniem LED, szufladami i wieszakami. Ciepła woda dostarczana za pomocą technologii aerotermalnej zapewniającej efektywność energetyczną. Wstępna instalacja kanałowej klimatyzacji i ogrzewania w salonach i sypialniach. Ekskluzywne udogodnienia dla społeczności Kompleks jest w pełni ogrodzony i szczyci się: Pięknie zagospodarowane wspólne ogrody. Lśniące baseny dla mieszkańców. Opcjonalne podziemne miejsca parkingowe i komórki lokatorskie dla dodatkowej wygody. Doskonała lokalizacja w Mil Palmeras Położona między Campoamor i Torre de la Horadada, inwestycja ta oferuje łatwy dostęp do lokalnych udogodnień, szkół, restauracji i obiektów sportowych czynnych przez cały rok. Mil Palmeras słynie z urokliwego rynku i tętniącej życiem „alei restauracyjnej”, oferującej różnorodne dania kuchni międzynarodowej. Dla entuzjastów przyrody, Park Przyrody Lo Monte, chroniony rezerwat ptaków i Park Przyrody Río Seco oferują idealne miejsca do uprawiania turystyki pieszej i relaksu. Bliskość najważniejszych atrakcji Międzynarodowe lotnisko w Murcji: 40 km (ok. 45 minut). Lotnisko Alicante: 75 km (ok. 45 minut). Najbliższe pola golfowe: W odległości mniejszej niż 10 km. Centra handlowe: 8 km do bulwaru Zenia. Przystanie i porty: 5 km do Torre de la Horadada. Twój wymarzony dom czeka Nie przegap okazji posiadania nieruchomości w tym wyjątkowym kompleksie mieszkaniowym. Niezależnie od tego, czy szukasz domu wakacyjnego, czy stałego miejsca zamieszkania, ta inwestycja w Mil Palmeras ma wszystko. Skontaktuj się z nami już dziś, aby uzyskać więcej informacji lub umówić się na wizytę!
Penthouse
San Pedro del Pinatar, España
-
Sypialnie
3
-
Łazienki
2
-
Basen
Tak








