RYNEK PIERWOTNY KOMPLEKS MIESZKANIOWY W POBLIŻU ESTEPONY Rynek Pierwotny kompleks luksusowych apartamentów w Buenas Noches, niedaleko Estepony. Kompleks znajduje się zaledwie 220 m od plaży i składa się tylko z 3 bloków, każdy z 5 apartamentami, w zamkniętej społeczności z nadzorem wideo, zapewniając maksymalną prywatność i komfort osobisty. Ten nowy projekt budowlany oferuje przemyślane, nowoczesne układy i panoramiczne okna, co jest rzadkością w tej lokalizacji. Projekt wyróżnia się zastosowaniem wysokiej jakości materiałów i najwyższej klasy konstrukcji. Wyjątkowa lokalizacja i przemyślana architektura zapewnią przyszłym mieszkańcom niezapomniane widoki z okien i tarasów, a także możliwość obserwowania wschodu słońca każdego ranka na tle wybrzeża morskiego. Buenas Noches to niewielka, dobrze ugruntowana dzielnica Estepony. Znajduje się po obu stronach autostrady A-7, około 5 km na zachód od miasta Estepona, w kierunku Sabinillas i Puerto Duquesa. Przy nadmorskiej drodze znajduje się otwarty latem hotel Pedro Paloma, a także centrum handlowe, stacja benzynowa i kładka dla pieszych. Większość nieruchomości ma dobry widok na morze, ponieważ obszar jest naturalnie pagórkowaty. Znajduje się tu mała, spokojna plaża Playa de la Galera lub Playa Buenas Noches, na której końcu znajduje się Islote de las Palomas.
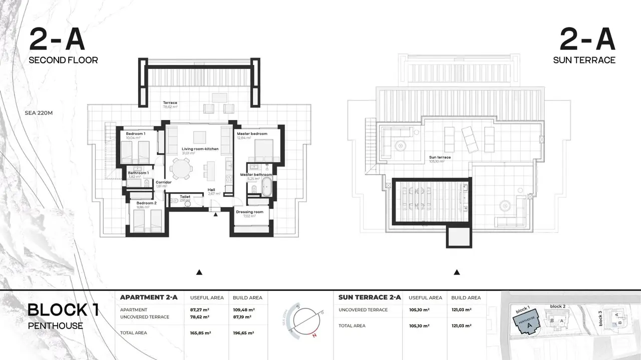
Penthouse
Marbella, Hiszpania
-
Sypialnie
3
-
Łazienki
2
-
Basen
Tak

















