NOWY BUDYNEK WILLE W VERA, ALMERIA New Build mieszkalnych z pięknych willi znajduje się w wybrzeżu . Almeria, Vera. New Build mieszkalnych z niezależnych willi do wyboru dwa modele: podwójnej wysokości, z trzema sypialniami i trzema łazienkami i 2/3 sypialnie z dwiema łazienkami, wszystko na jednym piętrze. Zarówno z basenem 6×3 metrów i na działce 230 metrów około. Jako opcji wszystkie wille mogą mieć underbuild przestrzeni za dodatkową opłatą. Wille położone zaledwie 200 metrów od plaży Vera. Vera jest jednym z najlepszych miejsc dla naturystów w Europie, uznanym za jakość i czystość ich wód. Oferuje sześć kilometrów plaż (Las Marinas-Bolaga, Puerto Rey, El Playazo, Quitapellejos). Vera graniczy ze słynnymi miejscowościami turystycznymi, takimi jak Mojacar i jaskinie Almanzora. Kompleks mieszkalny położony około 1,5 godziny jazdy od lotniska Murcia – Corvera i około 2 godzin od lotniska w Alicante.
Dom wolnostojący
La Manga Club, Hiszpania
-
Sypialnie
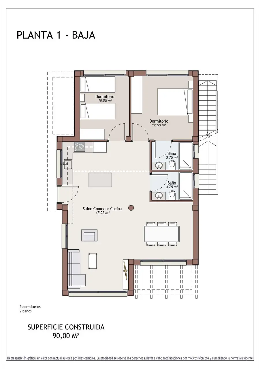
3
-
Łazienki
2
-
Basen
Tak














































