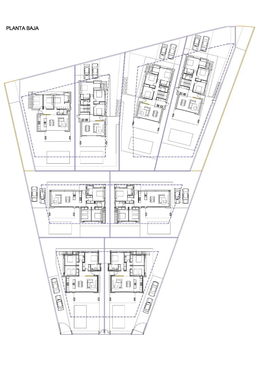
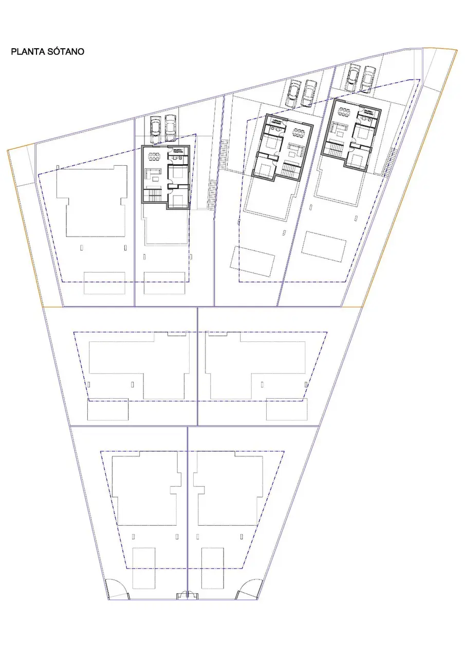
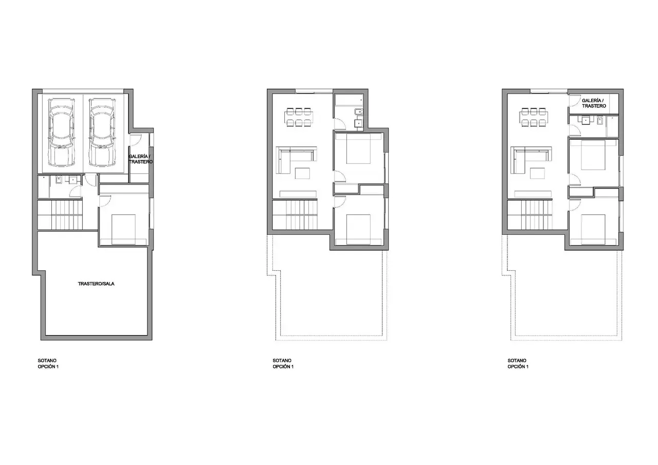
Nowo wybudowane jednopiętrowe wille z prywatnym basenem w Torrevieja Nowoczesne wille w ekskluzywnej dzielnicy Los Balcones Odkryj te wspaniałe nowo wybudowane wille, doskonale zlokalizowane w urbanizacji Los Balcones w Torrevieja. Zaprojektowane z myślą o komforcie i elegancji, te jednopiętrowe domy oferują przestronne wnętrza, wysokiej jakości wykończenia i prywatny basen, co czyni je idealnym wyborem dla osób poszukujących nowoczesnego śródziemnomorskiego stylu życia. Położone w cichej i dobrze skomunikowanej okolicy, wille te otoczone są szeroką gamą usług, w tym restauracjami, barami, centrami handlowymi i placówkami opieki zdrowotnej, zapewniając wygodę i wysoką jakość życia. Przestronny i funkcjonalny projekt Każda z 8 niezależnych willi zbudowana jest na przestronnej działce o powierzchni ponad 400 m², zapewniając dużą przestrzeń zewnętrzną. Domy posiadają: 3 przestronne sypialnie i 2 w pełni wyposażone łazienki. Duży salon i jadalnię na otwartym planie, zaprojektowane z myślą o naturalnym świetle i komforcie. Nowoczesna otwarta kuchnia, płynnie zintegrowana z przestrzenią mieszkalną. Prywatny basen, idealny do ochłody i rozrywki. Miejsce parkingowe na dwa samochody na działce. Prywatne solarium z otwartym widokiem, idealne do opalania i relaksu. Opcjonalna piwnica dostępna dla dodatkowej przestrzeni mieszkalnej lub magazynowej (za dodatkową opłatą). Wysokiej jakości funkcje i wykończenia Zbudowane z najwyższej jakości materiałów i zaprojektowane z myślą o luksusowym stylu życia, wille te obejmują: Ogrzewanie podłogowe w łazienkach, zapewniające komfort przez cały rok. Pakiet oświetlenia, poprawiający nastrój i funkcjonalność. Szereg opcji personalizacji, umożliwiających nabywcom dostosowanie wykończenia do własnych preferencji. Doskonała lokalizacja w pobliżu plaż i usług Los Balcones to bardzo poszukiwana dzielnica mieszkaniowa Torrevieja, znana ze spokojnego otoczenia, a jednocześnie blisko niezbędnych udogodnień. Wille te cieszą się doskonałą łącznością z kluczowymi lokalizacjami: Plaże Torrevieja – zaledwie 3 km. Międzynarodowe lotnisko w Alicante – 40 km (około 35 minut jazdy). Centra handlowe (La Zenia Boulevard, Habaneras) – 10-15 minut jazdy samochodem. Pola golfowe (Villamartín, Las Ramblas, Campoamor) – 15-20 minut jazdy samochodem. Centrum miasta Torrevieja – 3 km. Doskonała inwestycja i wymarzony dom Dzięki doskonałej lokalizacji, nowoczesnemu wzornictwu i wysokiej jakości wykończeniom, wille te oferują niesamowitą okazję do inwestycji, wakacji lub stałego pobytu na Costa Blanca. Skontaktuj się z nami już dziś, aby uzyskać więcej informacji lub umówić się na oglądanie!
Dom wolnostojący
Ciudad Quesada, España
-
Sypialnie
4
-
Łazienki
2
-
Basen
Tak













































