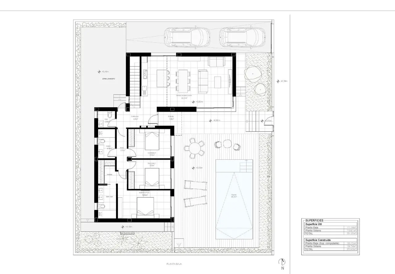
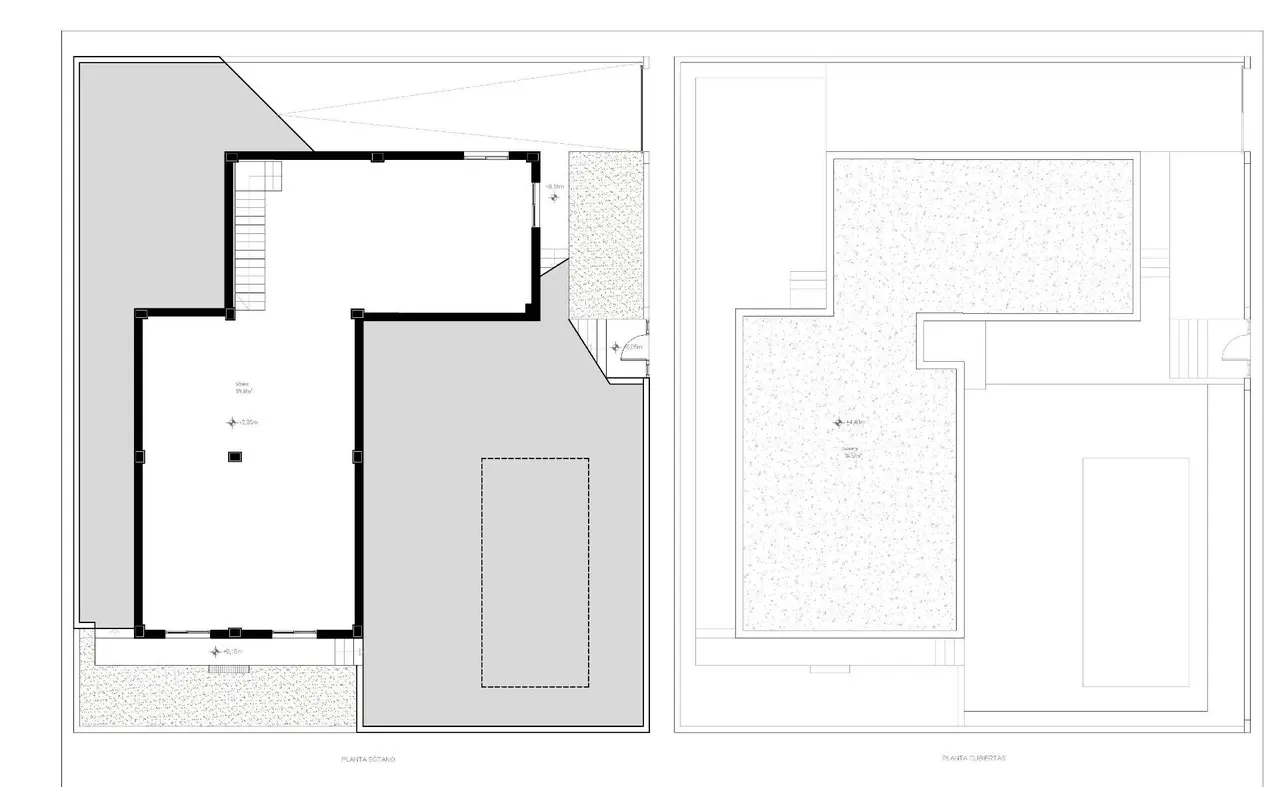
Nowe wille w Santa Rosalia Lake and Life Resort – ekskluzywne mieszkanie w Murcji Doskonała lokalizacja w pobliżu Mar Menor Te nowo wybudowane wille znajdują się w prestiżowym Santa Rosalia Lake and Life Resort, prywatnym, ogrodzonym osiedlu w regionie Murcji. Otoczone najwyższej klasy polami golfowymi i położone zaledwie 4 km od złotych plaż Mar Menor, osiedle oferuje idealne połączenie prywatności, natury i luksusowego stylu życia. Tętniące życiem nadmorskie miasteczko Los Alcázares znajduje się zaledwie 5 minut jazdy samochodem, a historyczne miasto Kartagena – 15 minut. Międzynarodowe lotnisko w Murcji oddalone jest o około 22 km, co zapewnia łatwy dojazd z głównych miast Europy. Nowoczesne wille zaprojektowane z myślą o komforcie Każda willa ma nowoczesny, otwarty układ i składa się z 3 sypialni, 2 łazienek oraz toalety dla gości. Jasna i przestronna część dzienna łączy w sobie w pełni wyposażoną kuchnię z jadalnią i salonem, z którego można wyjść do prywatnego ogrodu z basenem. Do dyspozycji jest również prywatny parking poza terenem osiedla. Na niższym poziomie znajduje się wykończona piwnica o powierzchni 136 m² z gładkimi ścianami, przyłączami wodnymi i elektrycznymi, która może służyć jako dodatkowa sypialnia, gabinet, siłownia, sala kinowa lub pokój zabaw dla dzieci. Wysokiej jakości wykończenie i ekologiczne rozwiązania Dbałość o szczegóły jest widoczna w każdym aspekcie tych domów. Najważniejsze elementy to wzmocnione drzwi antywłamaniowe, rolety z napędem elektrycznym w sypialniach, wbudowane szafy i kuchnia wyposażona w sprzęt AGD. Ekologiczne życie zapewnia sześć zainstalowanych paneli fotowoltaicznych. Ogród jest w pełni wykończony sztuczną trawą, palmami, automatycznym nawadnianiem i ozdobnymi krzewami. Wydajny system klimatyzacji kanałowej zapewnia komfort przez cały rok. Santa Rosalia Lake and Life Resort – karaibska oaza Ośrodek oferuje 126 000 m² pięknie zagospodarowanych terenów zielonych z ścieżkami spacerowymi i rowerowymi, obiektami sportowymi, kortami do padla i tenisa, minigolfem, parkami dla psów, przestrzeniami rekreacyjnymi i klubem. Centralnym punktem jest spektakularna, krystalicznie czysta laguna o powierzchni 17 000 m² z białymi piaszczystymi plażami i palmami, tworząca prawdziwą karaibską atmosferę. Na dwóch wyspach znajdują się strefy rekreacyjne, w tym bar i urocze kluby plażowe rozsiane wokół jeziora. Idealne miejsce na relaks, sport i inwestycję Ta wyjątkowa inwestycja jest idealna dla osób poszukujących głównego miejsca zamieszkania, domu wakacyjnego lub inwestycji o wysokim zysku. Strategiczna lokalizacja zapewnia łatwy dostęp do atrakcji kulturalnych, gastronomicznych i rekreacyjnych, co czyni ją wyjątkowym wyborem zarówno dla rodzin, jak i miłośników golfa. Skontaktuj się z nami już dziś, aby zarezerwować swoją nową willę w Santa Rosalia Lake and Life Resort i zacząć cieszyć się śródziemnomorskim stylem życia.
Dom wolnostojący
Los Alcazares, Hiszpania
-
Sypialnie
3
-
Łazienki
3
-
Basen
Tak












