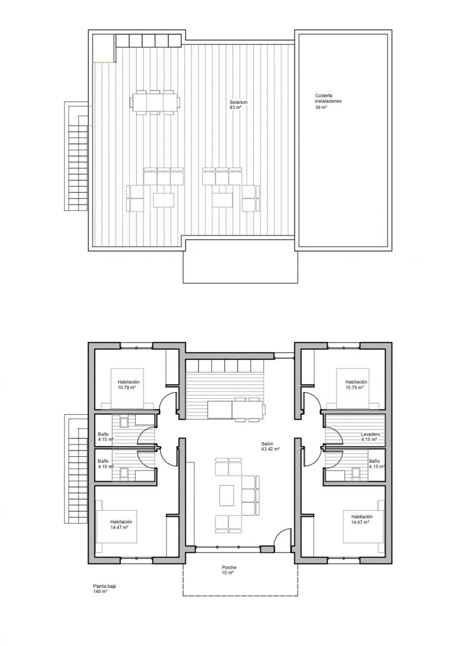
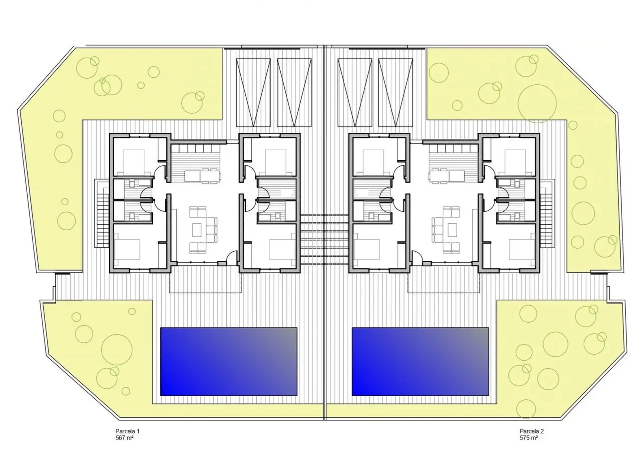
NOWE WILLE W ROLDAN Luksusowe 2 jednopoziomowe wille New Build w Roldan, Murcja. Wille budowane na działkach o powierzchni prawie 600 M2 każda, z prywatnym basenem o powierzchni 30 M2, terenem ogrodowym i dużym solarium na dachu. Każda nieruchomość ma 4 sypialnie i 3 łazienki i zostały zaprojektowane w nowoczesnym stylu i otwartej koncepcji planowanej, składającej się z w pełni wyposażonej kuchni i salonu-jadalni. Rozwój znajduje się w Roldán (Murcia), w ośrodku z bramą i kontrolą bezpieczeństwa, zawartym w częściowym planie 300.000 M2, otoczonym przez wszystkie usługi, obiekty sportowe i w pobliżu kilku pól golfowych. Nieruchomość będzie spełniać najwyższe standardy i będzie wyposażona w: Prywatny basen o powierzchni 30 M2 z prysznicem słonecznym. Pre-instalacja do podgrzewanej pompy. Kuchnia całkowicie umeblowana i wyposażona w podniesiony piekarnik, wbudowaną mikrofalówkę, zintegrowaną zmywarkę, lodówkę i wentylator wyciągowy. Obszar wyspy w kuchni. Oświetlenie LED: wewnątrz nieruchomości (jadalnia, kuchnia, korytarze i łazienki), a także na terenach zewnętrznych. Wyłożone szafy z szufladami. W pełni wyposażone łazienki z podwieszaną szafką i podwieszanym WC, lustrem z oświetleniem, prysznicem z „efektem deszczu” i parawanami prysznicowymi. Preinstalacja do klimatyzacji kanałowej. Letnia kuchnia z przesuwanymi drzwiami w solarium. Instalacja do podłączenia pralki i lodówki. Panel słoneczny. Parking na działce. Roldan sam jest tradycyjnym miastem z wszystkich lokalnych udogodnień, które będą potrzebne, w tym supermarkety, restauracje, bary, klinika zdrowia, apteka, posterunek policji, stacja benzynowa, mechanicy, dentyści, lekarze i więcej. Pobliskie ośrodki golfowe La Torre, & Terrazas są łatwo dostępne, Corvera Airport jest 15 minut od hotelu i plaże Mar Menor tylko 20 minut jazdy.
Dom wolnostojący
Orihuela Costa, España
-
Sypialnie
3
-
Łazienki
2
-
Basen
Nie

























