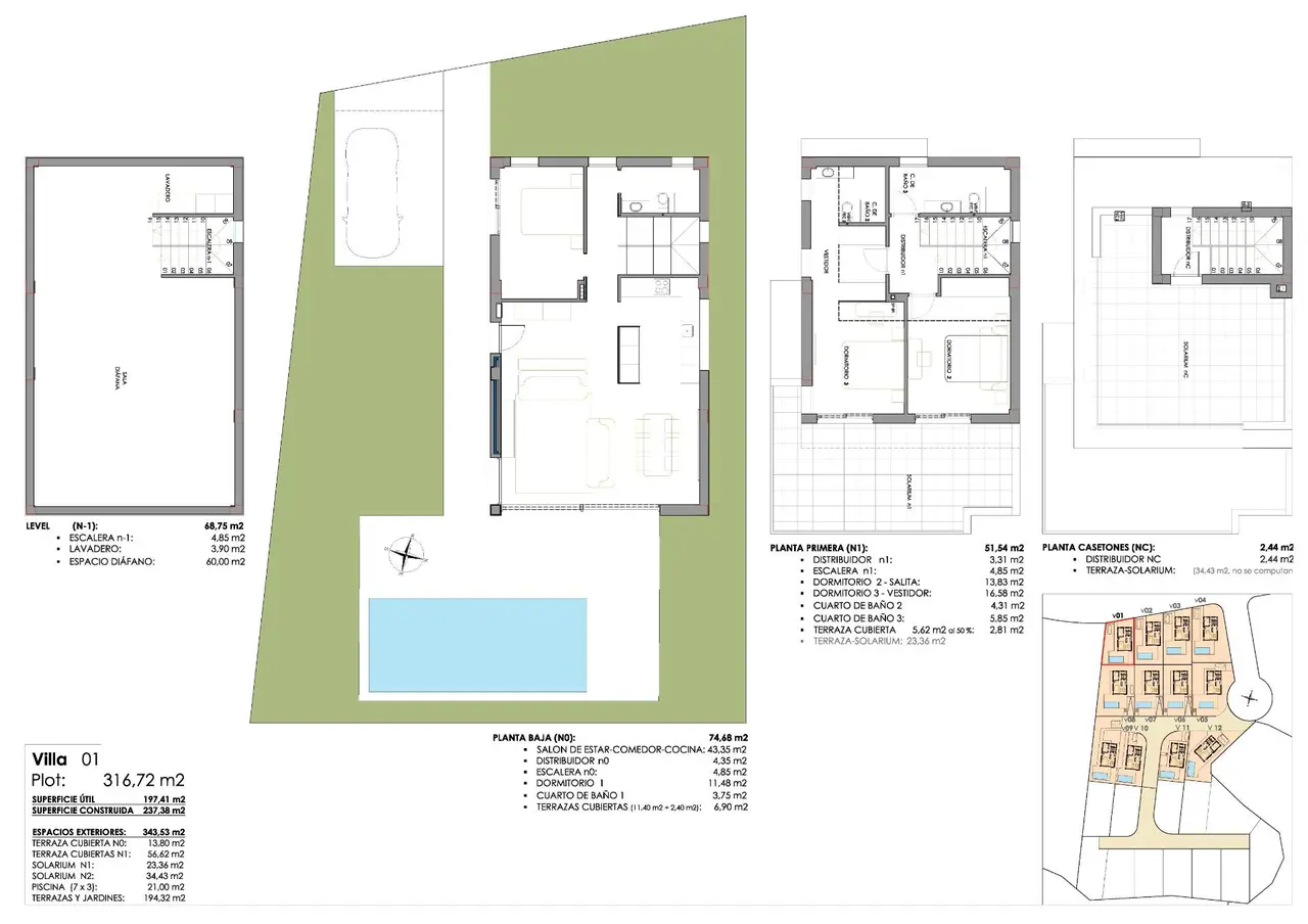
NYBYGGEDE VILLAER I SAN MIGUEL DE SALINAS Ekskluzywny nowy kompleks mieszkaniowy oferujący luksusowe wille z działkami o powierzchni od 300 m2 i imponującym basenem o wymiarach 8×3,5 m. Opcjonalna piwnica i solarium. Disse moderne boligene har 3 soverom, 3 bad, en romslig stue/spisestue og et fullt utstyrt kjøkken, samt hage, og svømmebasseng. Villaene skiller seg ut med sine lyse og åpne rom med eksepsjonell utsikt og en planløsning som utnytter hvert hjørne av boligen maksimalt. Finish og interiør av høy kvalitet smelter sammen til et moderne luksuskonsept som kombinerer den elegansen, komforten og raffinementet som kjøperne ønsker seg. Ved utformingen og byggingen av dette boligkomplekset er det tatt hensyn til grunnleggende aspekter som energieffektivitet og bruk av materialer av topp kvalitet, noe som garanterer en bærekraftig og langvarig livsstil. San Miguel de Salinas er en kommune i Valencia-regionen i Spania. Den ligger sør i Alicante-provinsen, i regionen Vega Baja del Segura i nærheten av Murcia-regionen. San Miguel de Salinas ligger nær golfbanene Las Colinas og Campoamor, og tilbyr eksepsjonell utsikt over lagunene Torrevieja og La Mata. Alicante flyplass ligger 35 minutters kjøring unna, og Murcias Corvera flyplass ligger ca. 1 times kjøring unna.
Dom wolnostojący
Ciudad Quesada, España
-
Sypialnie
3
-
Łazienki
3
-
Basen
Tak












