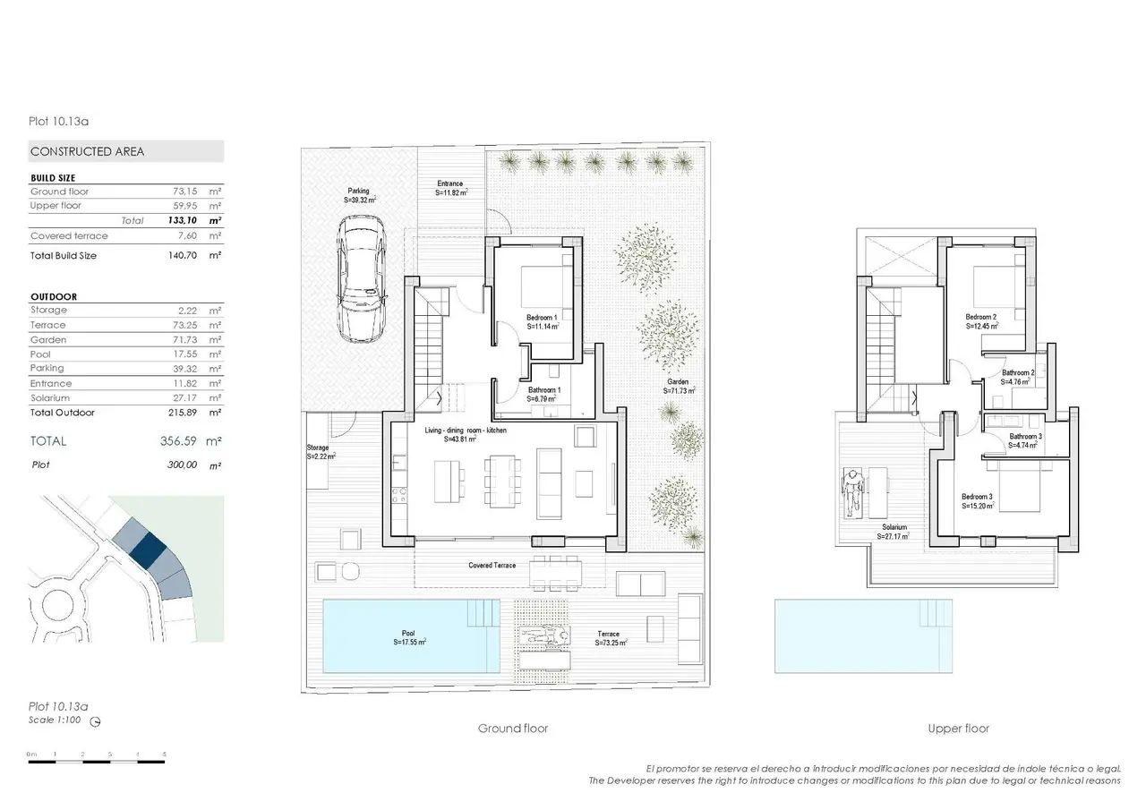
Nowe wille z prywatnym basenem w pierwszej linii Roda Golf Ekskluzywne życie przy polu golfowym na Costa Cálida Te nowoczesne wille położone w pierwszej linii brzegowej w Roda Golf (Murcja) stanowią idealne połączenie luksusu, komfortu i śródziemnomorskiego stylu życia. Położony zaledwie 3 km od złotych plaż Mar Menor, ten projekt mieszkaniowy jest idealny dla miłośników golfa, sportów wodnych oraz osób poszukujących spokojnego, ale dobrze skomunikowanego domu na Costa Cálida. Osiedle otoczone jest usługami, restauracjami, sklepami i obiektami sportowymi, co zapewnia wygodę w codziennym życiu. Przestronne wille z prywatnymi basenami Każda willa została starannie zaprojektowana na dwóch poziomach o łącznej powierzchni 140 m². Układ obejmuje: 3 sypialnie (2 z łazienkami) 3 w pełni wyposażone łazienki Jasny salon z otwartą kuchnią Sypialnia na parterze dla wygody Dwie sypialnie na pierwszym piętrze z bezpośrednim dostępem do odkrytego tarasu Ciesz się życiem na świeżym powietrzu dzięki prywatnemu basenowi, przestronnemu tarasowi na parterze i tarasowi słonecznemu na pierwszym piętrze, z którego roztacza się niezakłócony widok na pole golfowe i który jest nasłoneczniony przez cały dzień. Każda nieruchomość posiada również prywatne miejsce parkingowe na działce oraz dużą zewnętrzną komórkę lokatorską. Wysokiej jakości wyposażenie Domy te zostały zbudowane zgodnie z najwyższymi standardami i wyposażone w: Ogrzewanie podłogowe w łazienkach Zmotoryzowane aluminiowe rolety we wszystkich sypialniach W pełni wyposażone łazienki z meblami, lustrami, oświetleniem i szklanymi ekranami prysznicowymi Nowoczesne kuchnie z wyposażeniem Preinstalacja klimatyzacji kanałowej w salonie i sypialniach Panele słoneczne z falownikiem zapewniającym efektywność energetyczną Doskonała lokalizacja w Roda Golf Położone w prestiżowym kurorcie Roda Golf & Beach Resort, te wille otoczone są bujnymi fairwayami i śródziemnomorskimi krajobrazami. Odległości do głównych atrakcji: Plaże Mar Menor: 3 km Centrum handlowe Dos Mares: 5 km Przystań Lo Pagán: 6 km Klub golfowy Roda: w odległości spaceru Międzynarodowe lotnisko w Murcji (Corvera): 35 km Lotnisko w Alicante: 85 km Miasto Cartagena: 30 km Żyj w stylu śródziemnomorskim Niezależnie od tego, czy szukasz stałego miejsca zamieszkania, wakacyjnego wypoczynku, czy inwestycji pod wynajem, te wille oferują idealne połączenie elegancji, funkcjonalności i lokalizacji. Skontaktuj się z nami już dziś, aby umówić się na wizytę i zapewnić sobie willę w pierwszej linii brzegowej w Roda Golf. Twój wymarzony dom na Costa Cálida czeka!
Dom wolnostojący
Baños y Mendigo, Hiszpania
-
Sypialnie
2
-
Łazienki
2
-
Basen
Tak












