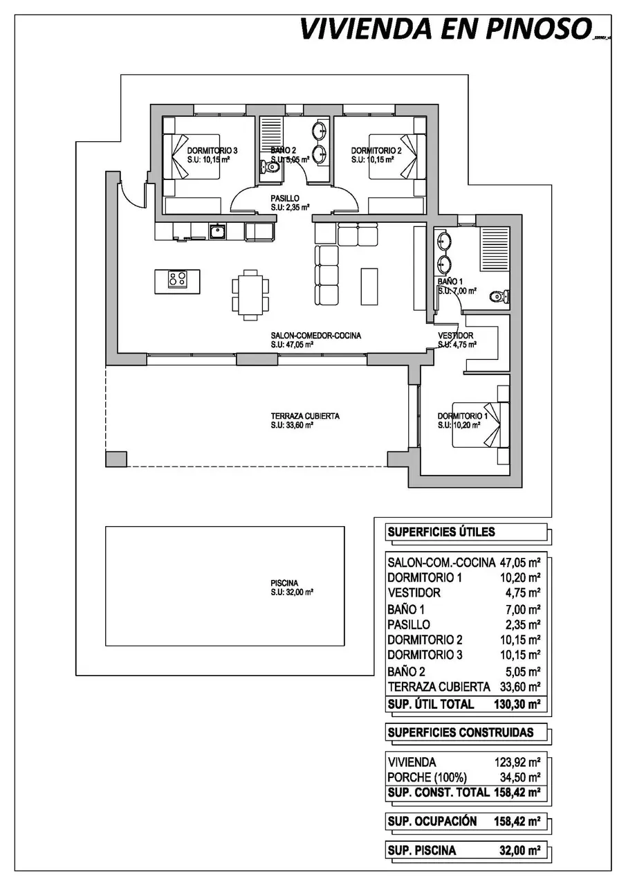
RYNEK PIERWOTNY WILLE W PINOSO Rynek Pierwotny niezależne nowoczesne wille, które można zbudować na działkach rustykalnych lub miejskich, mamy szeroki wybór dostępnych w okolicy Pinoso: - 3 sypialnie, 2 łazienki - Prywatny basen - Pełna instalacja klimatyzacji - W pełni wyposażona kuchnia - Duży wybór wysokiej jakości materiałów - Elektryczność i woda z sieci - 4 panele słoneczne w zestawie - Etykieta energetyczna AA - Działka o powierzchni 15.658 m² w Pinoso - Ogrodzona działka o powierzchni 3.000 m² dla łatwej konserwacji - Brama przesuwna z napędem Na działkach rustykalnych około 3.000 m2 całkowitej powierzchni działki zostanie ogrodzone, a domy zostaną dostarczone z około 1.000 m2 żwiru wokół domu. Dom posiada prywatny basen i fotowoltaiczne panele słoneczne do zasilania w energię elektryczną. Do wyboru jest kilka rustykalnych działek w różnych lokalizacjach, każda w innej cenie (w cenach opublikowanych w tym ogłoszeniu uwzględniono działkę o wartości 40.000 euro, jeśli kupujący wybierze inną działkę, ostateczna cena zostanie odpowiednio przeliczona). Okres dostawy wynosi 8 miesięcy od wydania pozwolenia na budowę. Działka jest nabywana w systemie autopromocji: kupujący dokonuje płatności na poczet ceny w miarę wykonywania prac przez wykonawcę.
Dom wolnostojący
Pilar de la Horadada, Hiszpania
-
Sypialnie
3
-
Łazienki
2
-
Basen
Tak



















