RYNEK PIERWOTNY LUKSUSOWE WILLE W POBLIŻU MARBELLI Położony w znakomitej enklawie Nueva Andalucia, nowy projekt zapewnia mieszkańcom luksusową ucieczkę, która ucieleśnia prawdziwą esencję luksusowego życia. Dzięki uprzywilejowanej lokalizacji w Nueva Andalucia mieszkańcy mają wygodny dostęp do wielu pobliskich udogodnień, a także rozległych widoków na okoliczne góry i morze. Urbanizacja stanowi sanktuarium innowacji i luksusu, będąc świadectwem synergii nowoczesnego designu i ponadczasowej elegancji. Mieszkańcy otrzymują podwyższony styl życia, z najlepszymi elementami architektury, bezpieczeństwa i personalizacji. Ten wizjonerski projekt na nowo definiuje koncepcję nowoczesnej urbanizacji, oferując niezrównany styl życia charakteryzujący się wyrafinowaniem, bezpieczeństwem i pomysłowością projektową. Składająca się z 26 luksusowych willi New Build urbanizacja stanowi harmonijne połączenie architektonicznego blasku i funkcjonalnej elegancji. Zaprojektowane przez wizjonerskiego architekta Ismaela Méridę, wille są nowoczesnymi cudami, z których każda obejmuje trzy poziomy, w tym solarium i piwnicę, a wszystkie połączone są parterem. Zwrócone w kierunku południowym, wschodnim, południowo-wschodnim i zachodnim, wille obejmują podróż słońca, rzucając czarujące odcienie i cienie przez cały dzień. To, co naprawdę wyróżnia ten projekt, to innowacyjne podejście do cyrkulacji pojazdów. Pod rezydencjami znajduje się pomysłowo zaprojektowana aleja, która umożliwia przepływ samochodów, a także dostęp do prywatnych wiat i garaży, dyskretnie ukrytych przed wzrokiem. Z lotu ptaka wzrok przyciąga nie sieć dróg, ale sieć ścieżek dla pieszych i bujnych krajobrazów, z pojazdami schowanymi pod spodem, łączącymi się z garażami i wiatami. Ta urzekająca cecha nie tylko zwiększa atrakcyjność estetyczną, ale także sprzyja atmosferze spokoju. Zanurzona w spokoju zamkniętej społeczności z 24-godzinnym nadzorem bezpieczeństwa, urbanizacja zapewnia środowisko pełnego spokoju. Ochroniarz stacjonujący przy wejściu dodaje dodatkową warstwę bezpieczeństwa i pewności. Pojedynczy punkt wejścia i wyjścia nie tylko zwiększa bezpieczeństwo, ale także przyczynia się do poczucia odosobnienia i prywatności, które definiują tę ekskluzywną enklawę. Mieszkańcy mogą być pewni, że tylko oni będą mieli dostęp do społeczności, a goście otrzymają dostęp po uzyskaniu zgody. Różnorodność kwitnie w tej urbanizacji z trzema odrębnymi typologiami. Małe i średnie rezydencje łączą wyrafinowane podobieństwo, podczas gdy większe wille z dwoma działkami oferują rozległe życie na wielką skalę. Dostępne są pakiety modernizacyjne, które pozwolą mieszkańcom dostosować willę do ich konkretnych pragnień. 23 z tych domów charakteryzują się harmonijną symetrią wielkości, zapewniając spójną i zachęcającą atmosferę w całej społeczności. 23 domy są podzielone na 2 typologie: Typologia A zaprojektowana przez GC-Studio i Typologia B zaprojektowana przez J. A. Flores. Dodatkową warstwę wyróżniającą stanowią 3 flagowe wille Signature Villas, które są ikonami prestiżu, a każda z nich emanuje własnym, niepowtarzalnym urokiem. Te 3 wille zostały sklasyfikowane jako Typologia C, zaprojektowane przez Pedro Peña. Wszystkie wille mają nie tylko własne udogodnienia, takie jak pokoje rozrywki, kina domowe i domowe siłownie, ale także dostęp do wspólnych udogodnień, takich jak niesamowita sala gimnastyczna i najnowocześniejsze SPA z krytym basenem, łaźnią turecką, sauną i łaźnią lodową. Wille Typology B, sklasyfikowane jako rezydencje średniej wielkości, prezentują niesamowity wystrój wnętrz wykonany przez znanego projektanta J. A. Floresa. Kategoria ta obejmuje cztery odrębne podtypy: B1, B2, B3 i B4. Podobnie jak w przypadku Typologii A, głównymi różnicami między nimi są orientacja, rozmieszczenie sypialni na poziomie oraz opcja prywatnej wiaty lub garażu. W szczególności podtypy B1 i B3 zapewniają mieszkańcom dostęp do prywatnej wiaty, podczas gdy podtypy B2 i B4 zapewniają dostęp do prywatnego garażu. Wszystkie wille Typology B mogą pochwalić się oszałamiającymi elementami zewnętrznymi z wypielęgnowanymi ogrodami i prywatnymi basenami bez krawędzi. Rezydencje te są wyposażone w takie udogodnienia, jak domowa siłownia, kino domowe i poziom rozrywki. Ekskluzywność każdej willi podnosi niesamowite solarium, oferujące mieszkańcom prywatną przestrzeń do rozrywki, relaksu i spektakularnych widoków. Wspólne przestrzenie społeczności są świadectwem jej zaangażowania w dobre samopoczucie i odprężenie. Bogate SPA i najnowocześniejsza siłownia dbają o dobre samopoczucie mieszkańców, a starannie wypielęgnowane ogrody zapewniają oazę relaksu. SPA oferuje luksusowe udogodnienia, takie jak kryty basen, łaźnia turecka, sauna i łaźnia lodowa, wszystkie starannie dobrane, aby poprawić styl życia mieszkańców. Wspólne ogrody są nieskazitelnie zadbane, oferując mieszkańcom zielone obszary idealne do relaksu.
Dom wolnostojący
Alhama De Murcia, Hiszpania
-
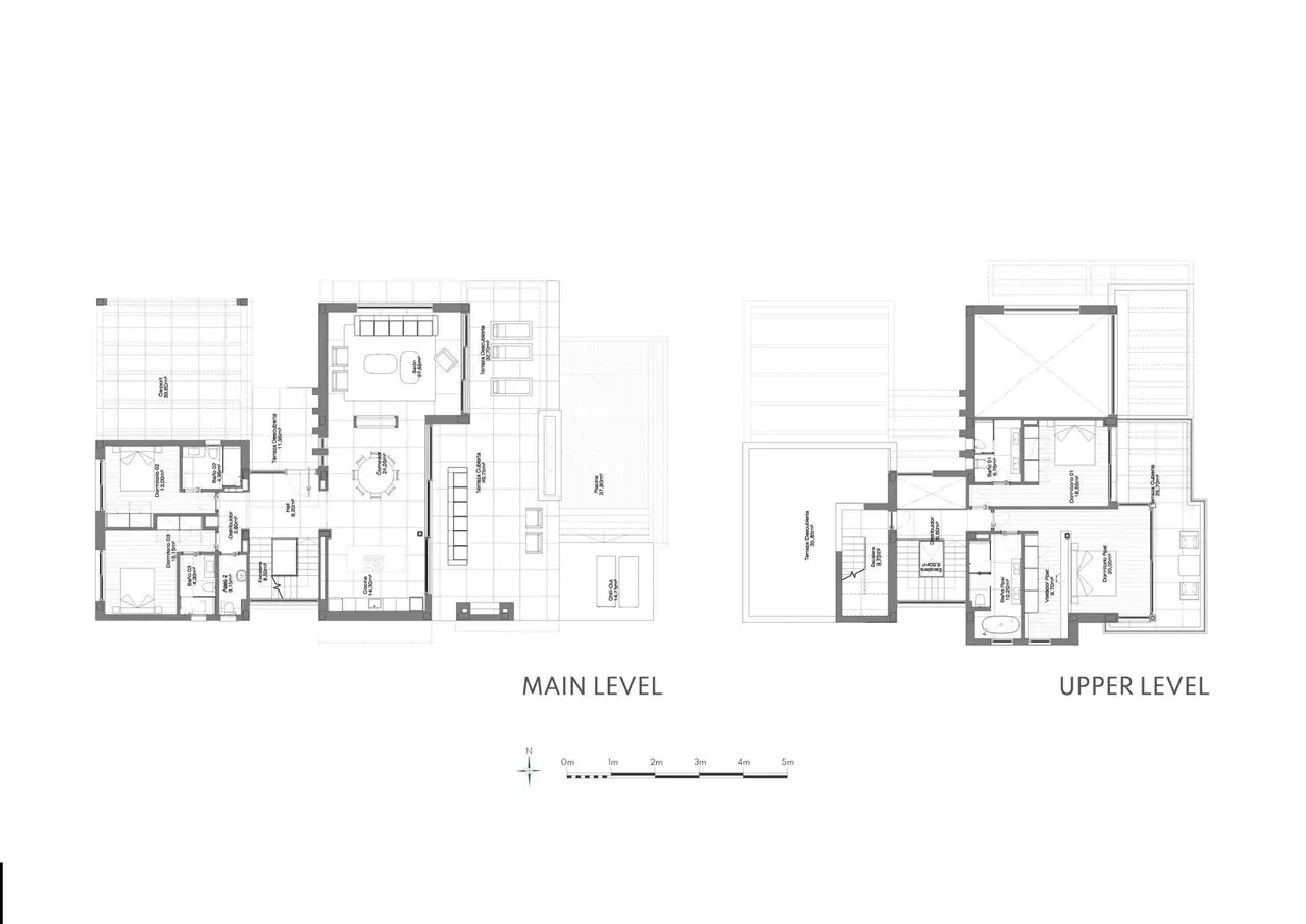
Sypialnie
3
-
Łazienki
2
-
Basen
Tak



























