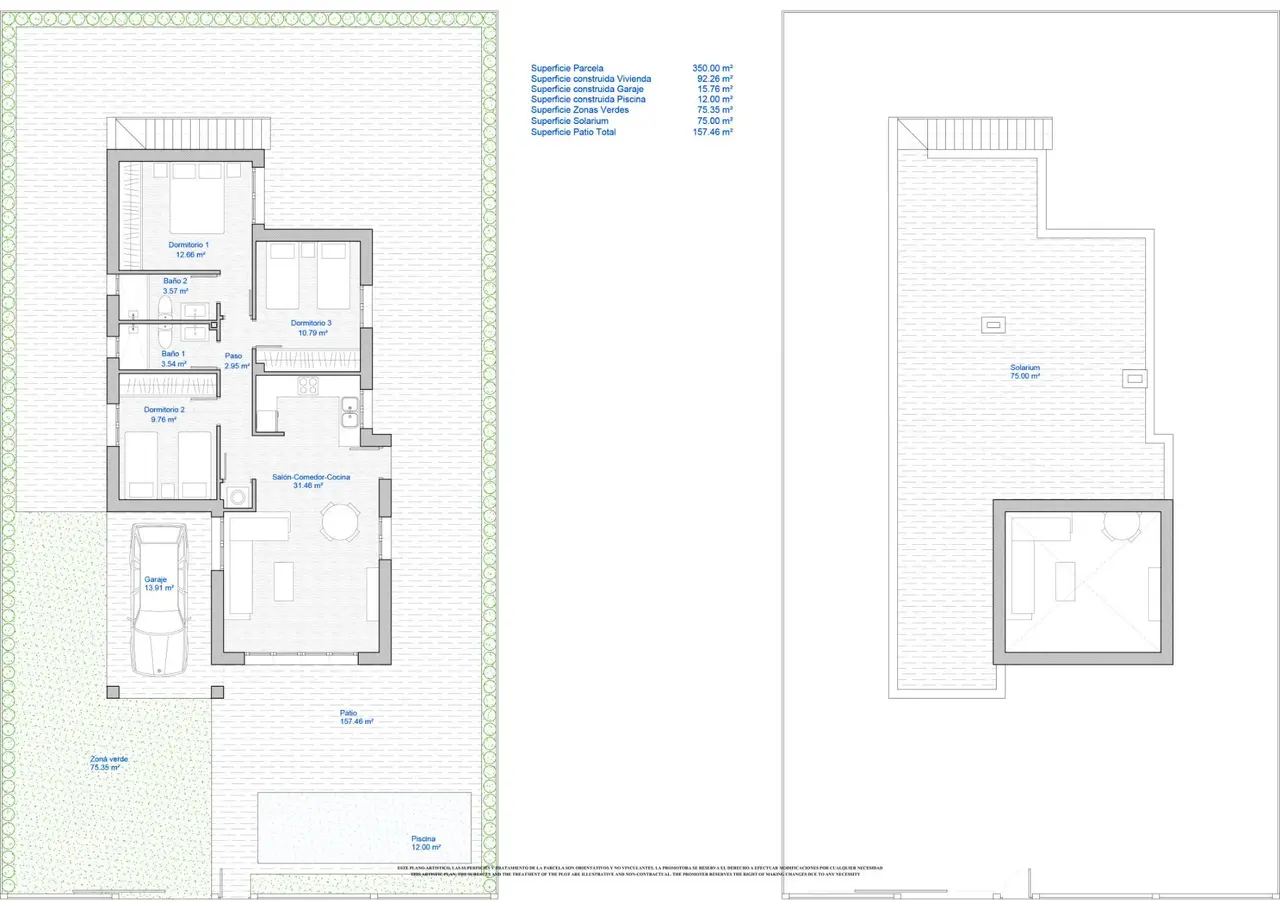
NOWE WILLE W LOS ALCAZARES New Build detached villa build on the generous plot of 350m2 in Los Alcazares. Willa posiada 3 sypialnie i 2 łazienki, kuchnię na otwartym planie z częścią wypoczynkową, wyposażone szafy, solarium, prywatny ogród z miejscem parkingowym i miejscem na basen. Opcje dla prywatnego basenu za dodatkową opłatą. Przestronny salon ma duże przesuwne drzwi na taras. Dużo tarasów z przodu i z tyłu zapewniają, że właściciele mogą opalać się przez cały dzień. To wille mają nowoczesne wyposażone kuchnie z wyborem kolorów dla jednostek kuchennych i płytek ściennych w obu kuchniach i łazienkach, a także podłogi i tarasy. Residential willi znajduje się 1 km od plaży i miasta Los Alcázares, gdzie można uprawiać różne sporty wodne, w otoczeniu kilku pól golfowych. Miasto Cartagena mniej niż 15 minut samochodem i 30 minut od lotniska Murcia Corvera.
Dom wolnostojący
Orihuela Costa, España
-
Sypialnie
7
-
Łazienki
4
-
Basen
Nie













