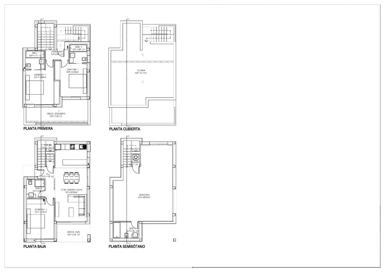
NOWE WILLE W LA NUCIA New Build Residential z komfortowych i luksusowych willi z prywatnymi basenami w La Nucia. Wille składają się z 3 dużych pokoi dwuosobowych z wyposażonymi i wyłożonymi szafami. Jeden pokój znajduje się na parterze, a dwa pozostałe na pierwszym piętrze. Składa się z 4 całkowicie wykończonych łazienek ze szklanymi ekranami, porcelanowymi toaletami i termostatycznymi kranami w prysznicach, jedna na pierwszym piętrze, druga w garażu, a pozostałe 2 en suite w pokojach na pierwszym piętrze. Jasny salon z dużymi oknami, które dają dostęp do prywatnej działki z basenem i sztuczną trawą, gdzie można się cieszyć i relaksować. W pełni wyposażona kuchnia amerykańska z szafkami wiszącymi i dolnymi, wysokiej klasy urządzeniami i wyspą z szafkami dolnymi, blatem SILESTONE z wbudowanym zlewem ze stali nierdzewnej i designerskim okapem ze stali nierdzewnej. Instalacja klimatyzacji i ogrzewania poprzez kanały AEROTHERMAL z 2 niezależnymi urządzeniami (dwustrefowymi). Komfort i design PORCELANOSA zapewniają ekskluzywne wykończenia, takie jak podłogi pływające, podłogi z kamienia naturalnego i najwyższej jakości gresu.Cała willa posiada wewnętrzne i zewnętrzne oświetlenie LED i elektryczne żaluzje. Rezydentnej położony w ekskluzywnej okolicy o doskonałej jakości i z wszystkich udogodnień; taras, solarium, prywatny garaż na 2 pojazdy, obszary ogrodowe, urbanizacji, basen i wszystko, co można sobie wyobrazić. Rezydentnej zobowiązała się do środowiska, wyposażone w panele słoneczne do produkcji ciepłej wody użytkowej, oświetlenie LED i THERMAL-ACOUSTIC izolacji. La Nucía jest gminą w okręgu Marina Baixa, w prowincji Alicante. Graniczy z gminami Altea, Callosa d’En Sarrià, Benidorm, Polop i L’Alfàs del Pi. La Nucia jest położona w dolinie owocowej między Benidorm i Callosa d’En Sarrià, 3 km od wybrzeża Altea. Ośrodek miejski znajduje się na cyplu z widokiem na Morze Śródziemne, 51 km na północ od Alicante i 8 km na północ od Benidormu. ODLEGŁOŚCI: – Dojazd z autostrady A. – 5 minut od Terra Mitica. – 5 minut od szkoły ELIANS. – 5 minut od supermarketów, kawiarni i wszelkiego rodzaju usług. – 10 minut od plaży Benidorm. – 15 minut od Playa del Albir. – 20 minut od zamku Guadalest. – 40 km od lotniska Alicante-Elche.
Dom wolnostojący
Orihuela Costa, España
-
Sypialnie
7
-
Łazienki
4
-
Basen
Nie





































