RYNEK PIERWOTNY WILLE W FINESTRAT Rynek Pierwotny nowoczesne wille w Finestrat. Wille z 4 sypialniami i 4 łazienkami, kuchnią na otwartym planie z częścią wypoczynkową, tarasem ze wspaniałym widokiem na Benidorm, prywatnym ogrodem z basenem i miejscem parkingowym. Boczny ogród, ozdobiony kaktusami i białym żwirem, łączy poziom dostępu 1 z głównym piętrem (poziom O). Wykorzystanie naturalnej trawy w pozostałej części terenu jest prezentowane jako dodatkowa cecha dzięki starannie zaprojektowanemu projektowi krajobrazu. Każdy poziom jest zaakcentowany materiałem, który podkreśla jego istotę. Poziom O jest pokryty naturalnym wapieniem, zapewniając wsparcie dla całej konstrukcji. Poziom 1, z jednowarstwowym wykończeniem i drewnianymi okiennicami, chroni najbardziej intymną część rezydencji. Wreszcie poziom 2, na którym znajduje się główna sypialnia, otwiera się na przestronny taras i jest wykończony teksturowaną jednowarstwową okładziną w ciepłym odcieniu. Śródziemnomorska estetyka została osiągnięta dzięki doskonałemu połączeniu tradycji, nowoczesnej architektury i natury. Finestrat znajduje się w regionie Marina Baixa na Costa Blanca, w pobliżu sąsiedniego Benidorm i około 40 kilometrów od miasta Alicante i międzynarodowego lotniska. Wioska położona jest na zboczu góry Puig Campana i oferuje piękne widoki na góry, wybrzeże i Morze Śródziemne. Benidorm znajduje się zaledwie pięć minut jazdy od nieruchomości i oferuje wszystkie potrzebne usługi, w tym sklepy, bary, restauracje, supermarkety, banki, apteki i kilka prywatnych szkół międzynarodowych.
Dom wolnostojący
Alfas del Pi, Hiszpania
-
Sypialnie
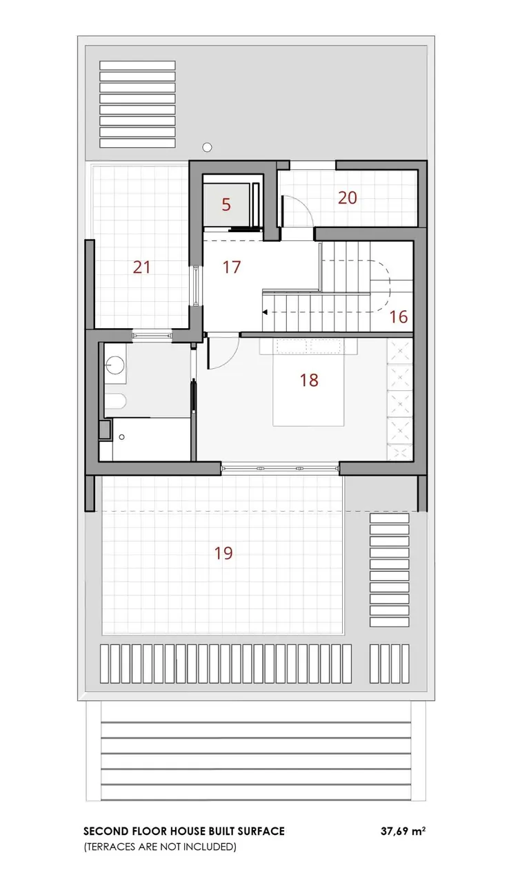
4
-
Łazienki
3
-
Basen
Tak






































