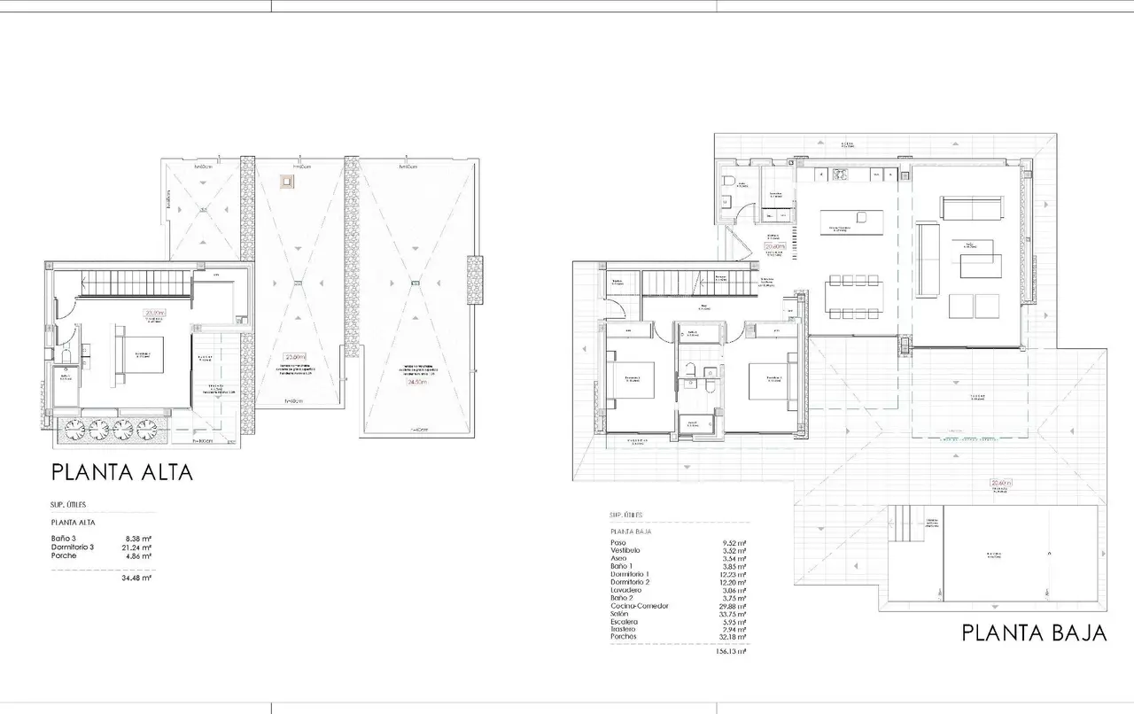
Ekskluzywne nowoczesne wille w Dénia – współczesny luksus blisko plaży Eleganckie wille z prywatnym basenem i śródziemnomorskim urokiem Odkryj te ekskluzywne nowoczesne wille w Dénia, zaprojektowane z myślą o komforcie, stylu i funkcjonalności w uprzywilejowanej lokalizacji. Dzięki współczesnej architekturze, eleganckim detalom z kamienia naturalnego i dużym oknom, domy te są skąpane w naturalnym świetle, tworząc jasne i zachęcające przestrzenie. Prywatny ogród krajobrazowy i basen zapewniają idealne warunki do cieszenia się śródziemnomorskim stylem życia przez cały rok. Przestronny układ i wysokiej jakości design Wille te są starannie rozmieszczone na dwóch poziomach: Parter: Dwie przestronne sypialnie z łazienkami, toaleta dla gości, pralnia i schowek dla dodatkowej wygody. Pierwsze piętro: Luksusowa główna sypialnia z łazienką i prywatnym tarasem, z którego roztacza się panoramiczny widok. Doskonała lokalizacja – piesza odległość do plaży i centrum miasta Położona w spokojnej, ale dobrze skomunikowanej okolicy, ta willa jest idealna jako miejsce stałego zamieszkania lub okazja inwestycyjna. Plaża oddalona jest o zaledwie 900 metrów, co pozwala na orzeźwiającą kąpiel lub relaksujący spacer wzdłuż brzegu w ciągu kilku minut. Centrum miasta oddalone jest o zaledwie 1 km, gdzie znajdują się sklepy, markety, restauracje i niezbędne usługi. Doskonała łączność i pobliskie udogodnienia Dénia to tętniące życiem nadmorskie miasto na Costa Blanca, znane z uroczej starówki, pięknej przystani i doskonałej gastronomii. Ta willa cieszy się wyjątkową łącznością z kluczowymi punktami zainteresowania: Centrum miasta Dénia – 1 km (10 minut spacerem) Plaża Dénia – 900 m (10 minut spacerem) Przystań Dénia – 2 km (5 minut jazdy samochodem) Ośrodek golfowy La Sella – 8 km (12 minut jazdy) Lotnisko Alicante – 104 km (1 godzina jazdy) Lotnisko Walencja – 110 km (1 godzina 15 minut jazdy) Nieruchomość jest również dobrze skomunikowana środkami transportu publicznego, z przystankami autobusowymi i tramwajowymi w pobliżu, a także szybkim dostępem do autostrad AP-7 i N-332. Twój idealny dom na Costa Blanca Ta oszałamiająca nowa willa jest obecnie w budowie, oferując możliwość zabezpieczenia nowoczesnego, wysokiej jakości domu w jednym z najbardziej poszukiwanych obszarów Dénia. Nie przegap tej okazji! Skontaktuj się z nami już dziś, aby uzyskać więcej informacji lub umówić się na wizytę.
Dom wolnostojący
Torre Pacheco, Hiszpania
-
Sypialnie
3
-
Łazienki
2
-
Basen
Tak








