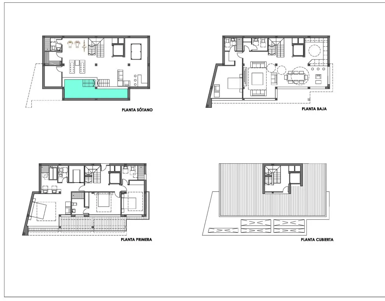
LUKSUSOWA WILLA Z WIDOKIEM NA MORZE Nowoczesna, wolnostojąca, luksusowa willa z przepięknym widokiem na morze. Nieruchomość posiada windę, która łączy 3 piętra domu. Ze wszystkich sypialni oraz z salonu można podziwiać spektakularne widoki na morze. Jego basen typu infinity pozwoli Ci wziąć relaksującą kąpiel, podczas której poczujesz jak łączysz się z horyzontem, Morzem Śródziemnym i jego błękitnym niebem. Rozwój znajduje się mniej niż 2 km od plaży i centrum Calpe, z wszystkich niezbędnych usług. Lotnisko w Alicante znajduje się 70 km od hotelu, a Benidorm z bogatą ofertą rozrywkową jest oddalony o 20 km. Z Calpe masz dostęp do szerokiej gamy pól golfowych, międzynarodowych szkół, portów i sportów morskich, zróżnicowanej gastronomii, a wszystko to w klimacie z 300 słonecznymi dniami w roku i średnią roczną temperaturą 20ºC.
Dom wolnostojący
Ciudad Quesada, España
-
Sypialnie
4
-
Łazienki
2
-
Basen
Tak









