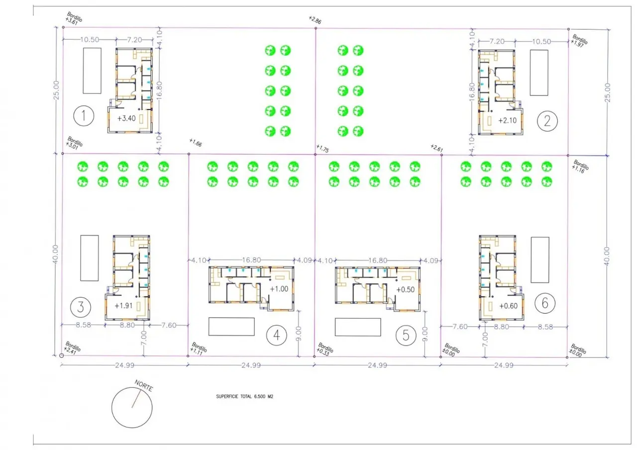
NOWE WILLE W CALASPARRA, MURCIA Nowy projekt budowy pięknych willi w Calasparra, Murcia. Luksusowy kompleks 6 niezależnych willi z dużym prywatnym basenem dla każdej nieruchomości. Wille są zaprojektowane na jednym poziomie z tarasami wokół niego i mają 3 sypialnie, w tym garderobę w głównej sypialni, 2 łazienki i toaletę. Wille te budowane są na działkach o powierzchni 1000 M2. Calasparra znajduje się w górskim regionie w północno-zachodniej części prowincji Murcia. W przeciwieństwie do otaczającego jałowego terenu, jest idealnym miejscem, aby cieszyć się ciszą i spokojem, że natura oferuje nam. Jego gastronomia, jego zakątki, jego klimat i jego ludzie, sprawiają, że wizyta w tym mieście jest obowiązkowa. Calasparra, otoczona czterema różnymi rzekami i dwoma bagnami, posiada jeden z najbardziej niesamowitych naturalnych krajobrazów na północnym zachodzie. Będziesz zachwycony jej malowidłami jaskiniowymi, stanowiskami archeologicznymi, kulturą, sportami na świeżym powietrzu i jej ryżem, który może być prawdopodobnie najlepszym, jaki kiedykolwiek próbowałeś.
Dom wolnostojący
Pilar de la Horadada, Hiszpania
-
Sypialnie
3
-
Łazienki
3
-
Basen
Tak



















