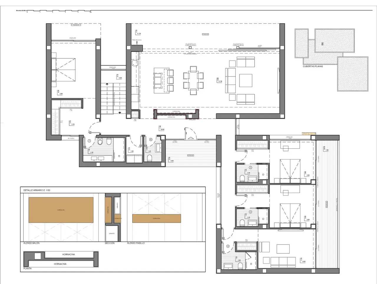
RYNEK PIERWOTNY LUKSUSOWA WILLA W CUMBRE DEL SOL Rynek Pierwotny willa położona w kurorcie Cumbre del Sol, ekskluzywnym obszarze dużych luksusowych willi z eleganckim widokiem na Morze Śródziemne. Nowo wybudowana willa została zaprojektowana z myślą o przyjemności i rekreacji. Wszystkie dodatki tej nowoczesnej luksusowej willi można znaleźć na działce o powierzchni ponad 1300 metrów kwadratowych. Willa z 3 sypialniami, 5 łazienkami i parkingiem na 4 samochody: 2 miejsca pod zadaszoną werandą i 2 w zamykanym garażu. Główna sypialnia posiada łazienkę i przestronną garderobę, a jej weranda pozwala podziwiać Morze Śródziemne w całym jego pięknie. Pozostałe dwie sypialnie dzielą wspaniały taras i dodatkową strefę, która może być wykorzystana do rekreacji lub jako biuro. Obie mają własną łazienkę. Dla dodatkowego komfortu salon/jadalnia i kuchnia znajdują się na tym samym piętrze. Kuchnia łączy się z salonem za pomocą wyspy, dzięki czemu nic nie oddziela Cię od przyjaciół. Duże okna prowadzą do solarium z basenem bez krawędzi, który łączy się z morzem. Ekskluzywność tej nowoczesnej willi polega na jej dolnym piętrze, które jest przeznaczone do rozrywki dla całej rodziny. Znajduje się tam prywatna siłownia z łazienką i sauną, a także sala kinowa. Całość posiada werandę, pod którą można się zrelaksować w otoczeniu spokoju morza. Jeśli szukasz domu, który jest inny, Villa zapewnia dodatkową przestrzeń, która sprawi, że Twój dzień będzie wyjątkowy.
Dom wolnostojący
Benitachell, Hiszpania
-
Sypialnie
3
-
Łazienki
5
-
Basen
Tak















