NOWE WILLE W ALTAONA GOLF RESORT, MURCIA New Build residencial z pięknych willi w Altaona Golf Resort, Murcia. Położony w uprzywilejowanym otoczeniu, gdzie możemy żyć spokojnie, w kontakcie z naturą i górami, osiągamy jakość życia, świeże powietrze i otwarte przestrzenie. Luksusowa willa New Build z otwartą kuchnią, 3 sypialnie, 3 łazienki plus toaleta, prywatny ogród z basenem, taras, solarium i piwnica. Exclusive New Build mieszkalnych znajduje się w Altaona Golf zaledwie 15 minut jazdy samochodem od centrum Murcji kapitału i 20 minut od plaż można cieszyć się spokojem i bezpieczeństwem oferowanych przez pole golfowe, które ma 18 otworów i komfort żyć blisko wszystkich usług. Murcias lotniska Corvera tylko 15 minut jazdy od hotelu.
Dom wolnostojący
Alfas del Pi, Hiszpania
-
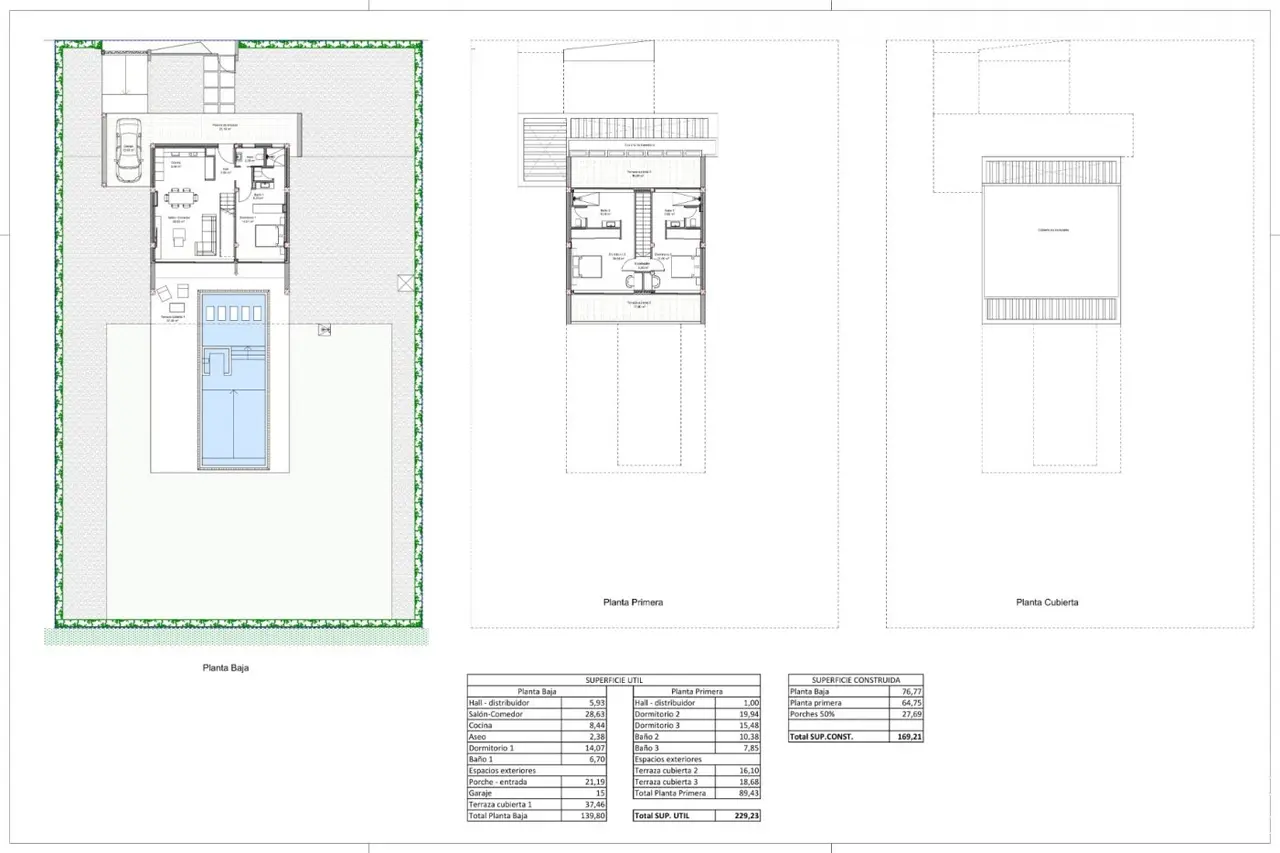
Sypialnie
4
-
Łazienki
4
-
Basen
Tak






















