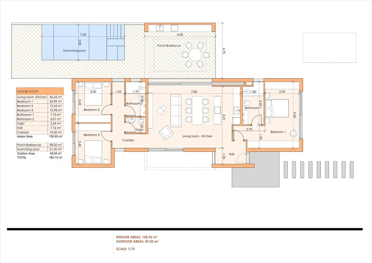
RYNEK PIERWOTNY WILLE W OŚRODKU GOLFOWYM ALTAONA, MURCJA Rynek Pierwotny budynek to niezwykły kompleks willi położony w pięknym kurorcie Altaona w Murcji. Ta ekskluzywna enklawa zapewnia idealne warunki do doświadczania płynnego połączenia luksusowego życia i spokojnego śródziemnomorskiego stylu życia. Poczuj, jak krajobraz wchodzi do domu przez duże okna. Ogród zyskuje wielką obecność i stanowi część samej istoty willi. Wewnątrz są przestronne i jasne, zaprojektowane tak, aby śródziemnomorskie światło zalewało ich pokoje. Nowe wille z otwartą kuchnią, 3 sypialniami, 2 łazienkami, toaletą dla gości, tarasem, prywatnym ogrodem z basenem i miejscem parkingowym. Cechy: - Nieruchomości posiadają certyfikat energetyczny A. - Klimatyzacja kanałowa z pompą ciepła. W całym domu z wyjątkiem łazienek. - Elektryczne ogrzewanie podłogowe w salonie i łazienkach z indywidualnym termostatem na strefę. - System wymiany powietrza w kuchni, łazienkach, pralni i toalecie dla gości. - Kuchnia Zawiera okap i elektryczną płytę indukcyjną z 3 punktami gotowania. - Oświetlenie LED w salonie, przedpokoju i na zewnątrz. Reszta pomieszczeń jest przygotowana do zainstalowania oświetlenia przez przyszłego właściciela. - Gniazda USB we wszystkich sypialniach. - Elektroniczny domofon zapewniający dostęp z zewnątrz do wewnętrznej ścieżki. Dzwonek do drzwi przy wejściu na posesję. - System automatyki domowej z dwoma inteligentnymi przełącznikami. - Prywatny ogród krajobrazowy z systemem nawadniania kropelkowego i basenem. - Zewnętrzne ogrodzenie urbanizacji. - Bramy wjazdowe do urbanizacji: Metalowa brama przesuwna z systemem zdalnego otwierania. Rezydencja położona w Altaona Golf, zaledwie 15 minut jazdy samochodem od centrum stolicy Murcji i 20 minut od plaż, może cieszyć się spokojem i bezpieczeństwem oferowanym przez pole golfowe z 18 dołkami oraz komfortem życia w pobliżu wszystkich usług. Lotnisko Corvera w Murcji oddalone jest o zaledwie 15 minut jazdy samochodem.
Dom wolnostojący
San Miguel de Salinas, Hiszpania
-
Sypialnie
3
-
Łazienki
3
-
Basen
Tak













