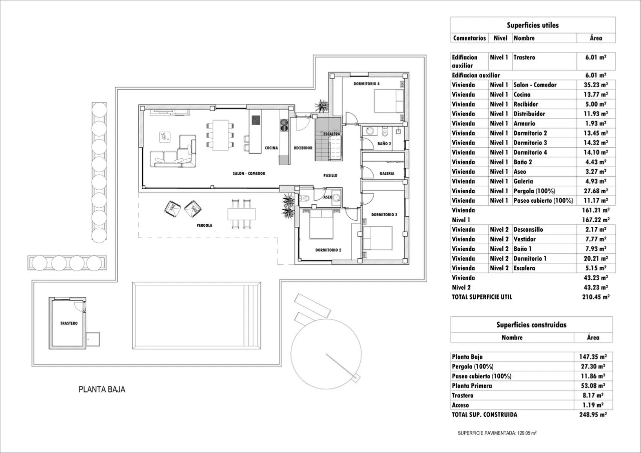
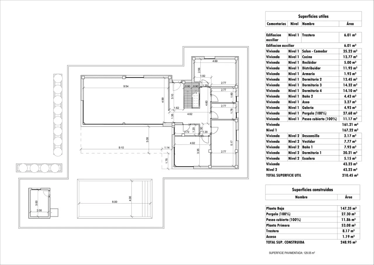
Nowe wille położone w gminie Aspe. Nowe wille z kilkoma modelami do wyboru, z 2, 3 lub 4 sypialniami, parterowe lub dwupoziomowe, z płytami lub konstrukcją szkieletową: dokładna cena zostanie obliczona w zależności od wybranego modelu i działki. Wszystkie wille są budowane na działkach o powierzchni ponad 10 000 m2, z czego około 2500 m2 zostanie ogrodzone. Wille posiadają kuchnię amerykańską z salonem, szafy wnękowe, prywatny basen, werandę, schowek i miejsce parkingowe na zewnątrz. Do wyboru jest kilka działek, do obliczenia ceny przyjęto działkę o cenie 77 500 euro (w przypadku wyboru innej działki należy dopłacić różnicę w zależności od jej ceny). Realizacja na zasadzie autopromocji, oddanie do użytku w ciągu około 12 miesięcy od uzyskania pozwolenia na budowę. Jeśli szukasz spokojnej okolicy, w pobliżu typowych hiszpańskich miasteczek, z dala od tłumów turystów, w otoczeniu gór, z bardzo dużą działką i około 30 minut od morza, to jest to dom dla Ciebie. Aspe to typowa hiszpańska miejscowość z wszystkimi udogodnieniami niezbędnymi do codziennego życia, otoczona górami i kilkoma miejscami o pięknej przyrodzie, gdzie można uprawiać turystykę pieszą lub rowerową. Położone 25 km od plaży, 9 km od Elche i około 20 km od lotniska w Alicante.
Dom wolnostojący
Orihuela Costa, España
-
Sypialnie
3
-
Łazienki
3
-
Basen
Nie

























