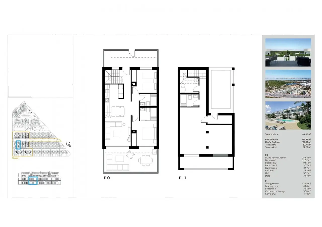
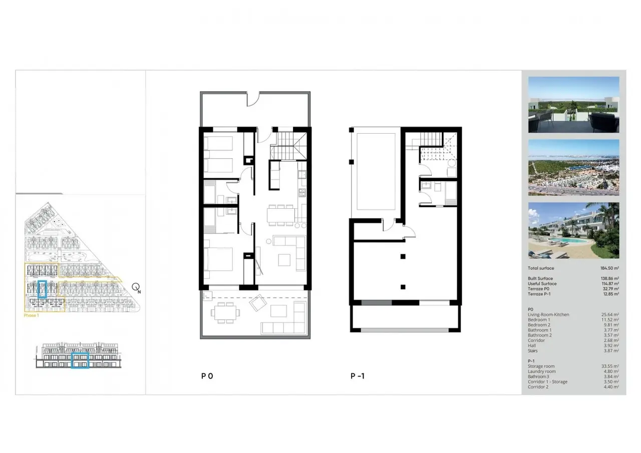
NOWY BUDYNEK REZYDENCJALNY W LOS BALCONES, TORREVIEJA New Build residential complex of semi-detached villas and bungalows located in Los Balcones with the views to the pink lake. Bungalowy na ostatnim piętrze posiadają 2 sypialnie, 2 łazienki, otwartą kuchnię z przestronnym salonem, wbudowane szafy, taras, prywatne solarium oraz parking podziemny. Nowa ekskluzywna rezydencja z dużymi wspólnymi obszarami; ogrody, ogród-siłownia, plac zabaw, 2 duże wspólne baseny – jeden z nich dla dorosłych, a drugi dla dzieci. Los Balcones to małe miasteczko położone w pobliżu południowej części Torrevieja. Torrevieja to hiszpańskie miasto w prowincji Alicante, na wybrzeżu Costa Blanca. Znane jest z typowo śródziemnomorskiego klimatu i linii brzegowej. Posiada deptaki z kurortami wzdłuż swoich piaszczystych plaż. Małe Muzeum Morza i Soli mieści wystawy dotyczące rybackiej i solnej historii miasta. Wewnątrz, Lagunas de La Mata-Torrevieja Natural Park ma szlaki i dwie słone laguny, jeden różowy i drugi zielony. Lotnisko w Alicante oddalone o 40 minut, a lotnisko w Murcji o około 1 godzinę drogi.
Dom szeregowy
San Pedro del Pinatar, Hiszpania
-
Sypialnie
3
-
Łazienki
2
-
Basen
Tak





















