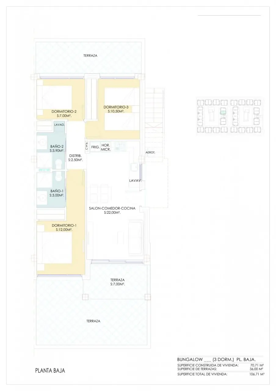
NOWY BUDYNEK MIESZKALNY Z APARTAMENTAMI TYPU BUNGALOW W LOS BALCONES, TORREVIEJA Nowy budynek mieszkalny kompleks z wspaniałymi widokami na różowe słone jezioro w Los Balcones. Kompleks składa się z 104 bungalowów z 2 i 3 sypialniami, bungalowy na ostatnim piętrze mają prywatne solarium z panoramicznym widokiem na słone jezioro, a bungalowy na parterze mają duże tarasy z widokiem na zieleń. Te bungalowy mają wspólne piękne tereny zielone i 2 duże baseny. Opcjonalnie dostępne są podziemne miejsca parkingowe i komórki lokatorskie. Osiedle oferuje nowoczesny design, wyselekcjonowane materiały, apartamenty wykończone zgodnie z najwyższymi standardami przy użyciu wyłącznie materiałów najwyższej jakości. Rezydentnej zostanie zbudowany na wzgórzu, w ten sposób widok, a także powietrze jest czyste i unikalne jakości. Los Balcones znajduje się tuż obok Torrevieja z wszystkich dostępnych usług, zaledwie 5 minut od Playa de Los Náufragos, supermarkety, szkoła i La Zenia Boulevard Shopping Centre, a minutę od Torrevieja University Hospital. Ponadto w pobliżu znajdują się 4 pola golfowe, w tym nagradzane Las Colinas Golf & Country Club. Kompleks znajduje się 40 minut od lotniska w Alicante i 1 godzinę od lotniska Murcia – Corvera.
Dom szeregowy
Pilar de la Horadada, Hiszpania
-
Sypialnie
2
-
Łazienki
2
-
Basen
Tak




































