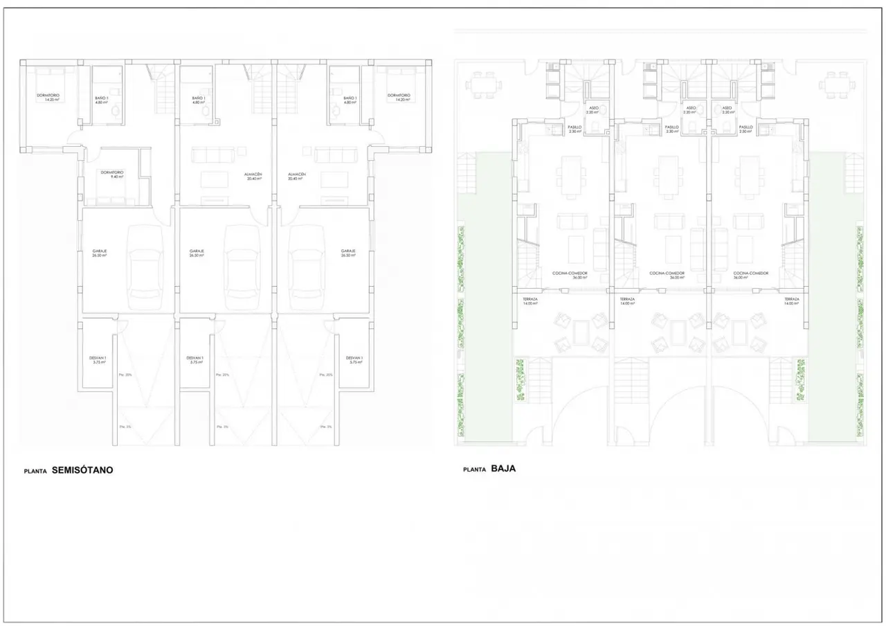
PIĘKNA KAMIENICA W LOS ALTOS, TORREVIEJA Klucz Gotowy Nowy dom w Los Altos znajduje się kilka minut od szpitala Torrevieja i różowego jeziora soli. Dom w stylu śródziemnomorskim z 2 sypialniami, 3 łazienkami, salonem, kuchnią, tarasami, garażem i solarium z widokiem na różowe słone jezioro. Los Altos to popularna dzielnica mieszkalna w południowej części Torrevieja, w pobliżu słonego jeziora. W odległości spaceru są wszelkiego rodzaju usług, takich jak bary, sklepy, supermarkety, apteki, itp. Dokonywanie to idealne miejsce do życia przez cały rok. Ponadto, jest to tylko 2 km od pięknych plaż. Torrevieja to hiszpańskie miasto w prowincji Alicante, na wybrzeżu Costa Blanca. Znane jest z typowo śródziemnomorskiego klimatu i linii brzegowej. Posiada deptaki z kurortami wzdłuż swoich piaszczystych plaż. W małym Muzeum Morza i Soli znajdują się wystawy na temat rybołówstwa i historii soli w mieście. W głębi miasta, w Parku Naturalnym Lagunas de La Mata-Torrevieja znajdują się szlaki i dwie słone laguny, jedna różowa, druga zielona. Lotnisko w Alicante znajduje się 40 minut drogi od hotelu, a lotnisko w Murcji około 1 godziny drogi.
Dom szeregowy
Guardamar del Segura, España
-
Sypialnie
2
-
Łazienki
2
-
Basen
Nie




























