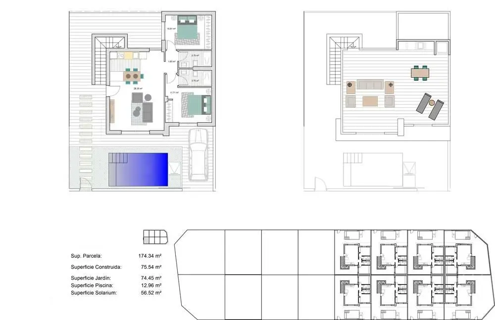
NOWE WILLE W ZABUDOWIE BLIŹNIACZEJ W ROLDAN Nowy, luksusowy kompleks jedno lub dwupoziomowych willi w zabudowie bliźniaczej w Roldan. Do wyboru są wille w zabudowie bliźniaczej z 2 sypialniami, 2 łazienkami na jednym piętrze z solarium lub z 3 sypialniami, 3 łazienkami na dwóch piętrach z dużym tarasem. Na ostatnim piętrze, na tarasie lub w solarium znajduje się letnia kuchnia, która pozwala cieszyć się słońcem przez wszystkie godziny, każdego dnia w roku. Wszystkie wille mają prywatny ogród z basenem i miejscem parkingowym. Zaprojektowane we współczesnym stylu, z otwartą koncepcją, składającą się z w pełni wyposażonej kuchni i salonu-jadalni. Osiedle znajduje się w Roldán (Murcia), w obrębie ośrodka z bramą i kontrolą bezpieczeństwa. Znajduje się w pobliżu plaży, w otoczeniu usług, parków, obiektów sportowych i kilku pól golfowych. Nieruchomość będzie spełniać najwyższe standardy i będzie wyposażona w: Prywatny basen preinstalowany do systemu grzewczego i z prysznicem solarnym. Kuchnia całkowicie umeblowana i wyposażona w piekarnik, mikrofalówkę, lodówkę, zintegrowaną zmywarkę i wentylator wyciągowy. Ponadto, centralna drewniana wyspa. Oświetlenie: LED wewnątrz nieruchomości, jak również na terenach zewnętrznych. Wyłożone szafy z szufladami. W pełni wyposażone łazienki z podwieszaną toaletą, kabiną prysznicową, szafką na kosmetyki, lustrem z oświetleniem i deszczownicą. Letnia kuchnia w solarium. Preinstalacja klimatyzacji kanałowej. Miejsce parkingowe na działce. Roldan jest tradycyjnym miasteczkiem ze wszystkimi lokalnymi udogodnieniami, których będziesz potrzebować, takimi jak supermarkety, restauracje, bary, przychodnia zdrowia, apteka, posterunek policji, stacja benzynowa, mechanicy, dentyści, lekarze i wiele innych. Łatwo dostępne są pobliskie ośrodki golfowe La Torre i Terrazas, lotnisko Corvera oddalone jest o 15 minut jazdy samochodem, a plaże Mar Menor o 20 minut.
Dom szeregowy
San Fulgencio, Hiszpania
-
Sypialnie
3
-
Łazienki
2
-
Basen
Tak






















