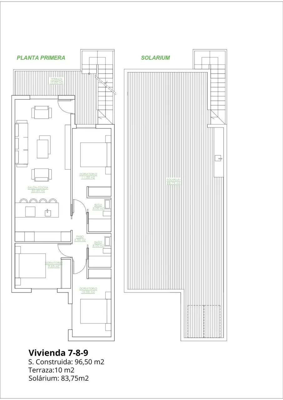
Nowe bungalowy w San Pedro del Pinatar – nowoczesność i komfort kilka minut od morza Śródziemnomorskie życie w uprzywilejowanej lokalizacji Ten nowy kompleks bungalowów znajduje się w San Pedro del Pinatar, jednym z najbardziej atrakcyjnych miejsc na wybrzeżu Costa Cálida w Murcji. Otoczony wszystkimi udogodnieniami, terenami sportowymi i kilkoma polami golfowymi, kompleks ten znajduje się zaledwie 5 minut od plaż Morza Śródziemnego i Mar Menor, dwóch najpopularniejszych nadmorskich kurortów w południowo-wschodniej Hiszpanii. Ekskluzywne budynki mieszkalne ze stylem i funkcjonalnością Kompleks składa się z 10 nowo wybudowanych bungalowów, z 1 sypialnią i 1 łazienką, idealnych dla osób szukających ekonomicznej opcji, a także z 3 sypialniami i 2 łazienkami, zaprojektowanych dla rodzin lub osób pragnących większej przestrzeni. Każda nieruchomość obejmuje Prywatne miejsce parkingowe w pełni wyposażoną kuchnię ze sprzętem AGD Nowoczesne łazienki z szafkami podumywalkowymi, oświetleniem i szklanymi ściankami działowymi Wstępna instalacja klimatyzacji kanałowej Prywatne solarium na najwyższym piętrze z letnią kuchnią Wspólny basen ze strefą relaksu i solarium Nowoczesne i wysokiej jakości wykończenia Zaprojektowane z naciskiem na komfort i wydajność, bungalowy zawierają najwyższej klasy materiały i wykończenia: Ciemnoszara, lakierowana aluminiowa stolarka zewnętrzna. Zmotoryzowane żaluzje i podwójnie oszklone okna z komorą powietrzną Wewnętrzne i zewnętrzne oświetlenie LED Drzwi antywłamaniowe przy wejściu Punkt poboru wody na tarasie i solarium Kluczowe odległości: Centrum handlowe Dos Mares: 3 km Plaże Mar Menor: 3,5 km Pole golfowe Lo Romero: 11 km Lotnisko Murcja-Corvera: 39 km Lotnisko Alicante: 78 km Przystań San Pedro: 4 km San Pedro del Pinatar – jakość życia przez cały rok To miasto słynie z naturalnych kąpieli błotnych, spokojnej atmosfery oraz nowoczesnej infrastruktury sportowej i żeglarskiej. Łagodny klimat przez cały rok i doskonałe połączenia komunikacyjne sprawiają, że jest to idealne miejsce zarówno do życia, jak i wypoczynku. Obszar Lo Pagan oferuje tętniące życiem życie towarzyskie z restauracjami, sklepami i rozrywką dla wszystkich grup wiekowych. Odkryj swój nowy dom na Costa Cálida Bungalowy te stanowią doskonałą okazję inwestycyjną lub idealny śródziemnomorski wypoczynek. Skontaktuj się z nami już dziś i umów się na oglądanie, aby odkryć swój przyszły dom w San Pedro del Pinatar.
Dom szeregowy
San Pedro del Pinatar, Hiszpania
-
Sypialnie
2
-
Łazienki
2
-
Basen
Tak










