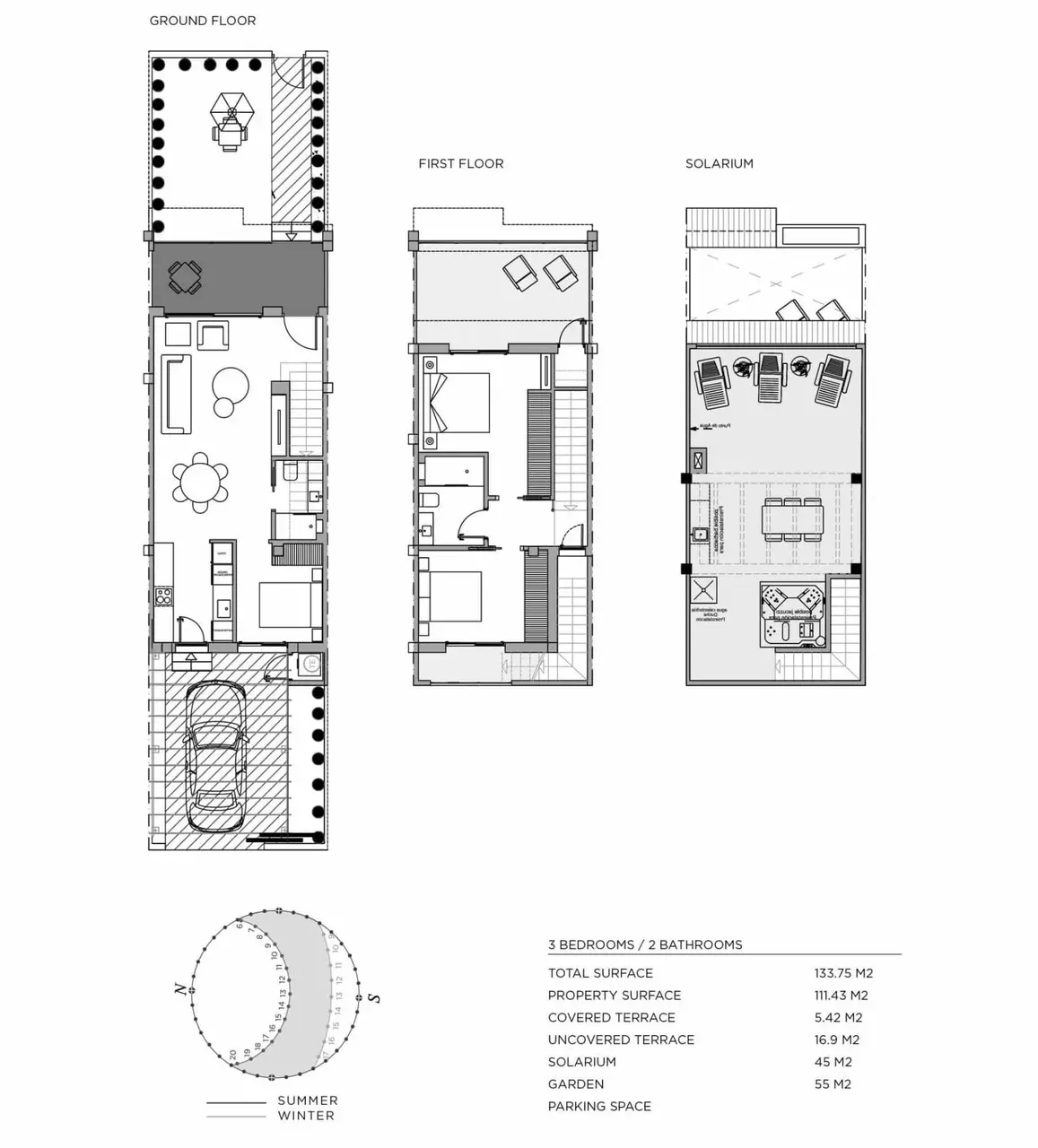
RYNEK PIERWOTNY KOMPLEKS MIESZKANIOWY W ROJALES Rynek Pierwotny kompleks apartamentów typu bungalow, kamienic i willi w zabudowie bliźniaczej w Rojales. Apartamenty typu bungalow z 2 i 3 sypialniami na 2 piętrach: parter z prywatnym ogrodem i pierwsze piętro z prywatnym tarasem na dachu. Kamienice zbudowane na 2 piętrach i mają 3 sypialnie, 2 łazienki, kuchnię na otwartym planie i część wypoczynkową, wbudowane szafy, tarasy, prywatny ogród i solarium. Wille w zabudowie bliźniaczej zbudowane na 2 piętrach i mają 3 sypialnie, 2 i 3 łazienki, kuchnię na otwartym planie i część wypoczynkową, wbudowane szafy, tarasy, prywatny ogród i solarium. Prywatne osiedle z terenami zielonymi, basenem i prywatnym parkingiem. Wszystkie niezbędne usługi na wyciągnięcie ręki: supermarkety, pola golfowe, restauracje, ośrodki zdrowia. Rojales to tradycyjnie rolnicze miasteczko, które stało się jednym z ulubionych miejsc w głębi Vega Baja, dzięki strategicznej lokalizacji w pobliżu N-332 i AP-7. Doskonały dojazd pozwala dotrzeć do lotniska w Alicante w 20 minut i cieszyć się plażami Guardamar, La Mata lub Torrevieja w 15 minut. Rojales oferuje bogatą i zróżnicowaną ofertę gastronomiczną i rekreacyjną, a także prestiżowe pole golfowe La Marquesa Golf. Rojales to urocza wioska ze wszystkimi usługami, takimi jak supermarkety, apteki, banki, restauracje i park przyrodniczy położony bardzo blisko willi. La Marquesa Golf to jedno z najbardziej historycznych pól golfowych na Costa Blanca, z 18 dołkami i jednym tak wyjątkowym jak 17. dołek w Sawgrass. Tradycja, jakość i doświadczenie łączą się, aby zaoferować golfistom, którzy nas odwiedzają, wyjątkowe doświadczenie, pełne historii.
Dom szeregowy
San Pedro del Pinatar, Hiszpania
-
Sypialnie
3
-
Łazienki
2
-
Basen
Tak











































