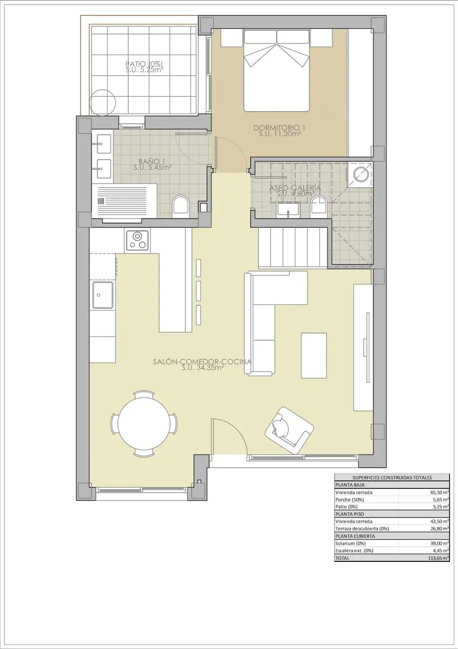
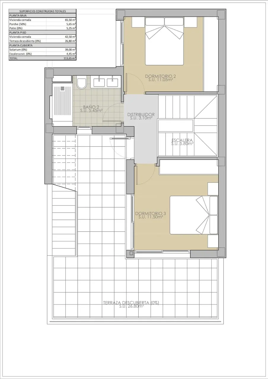
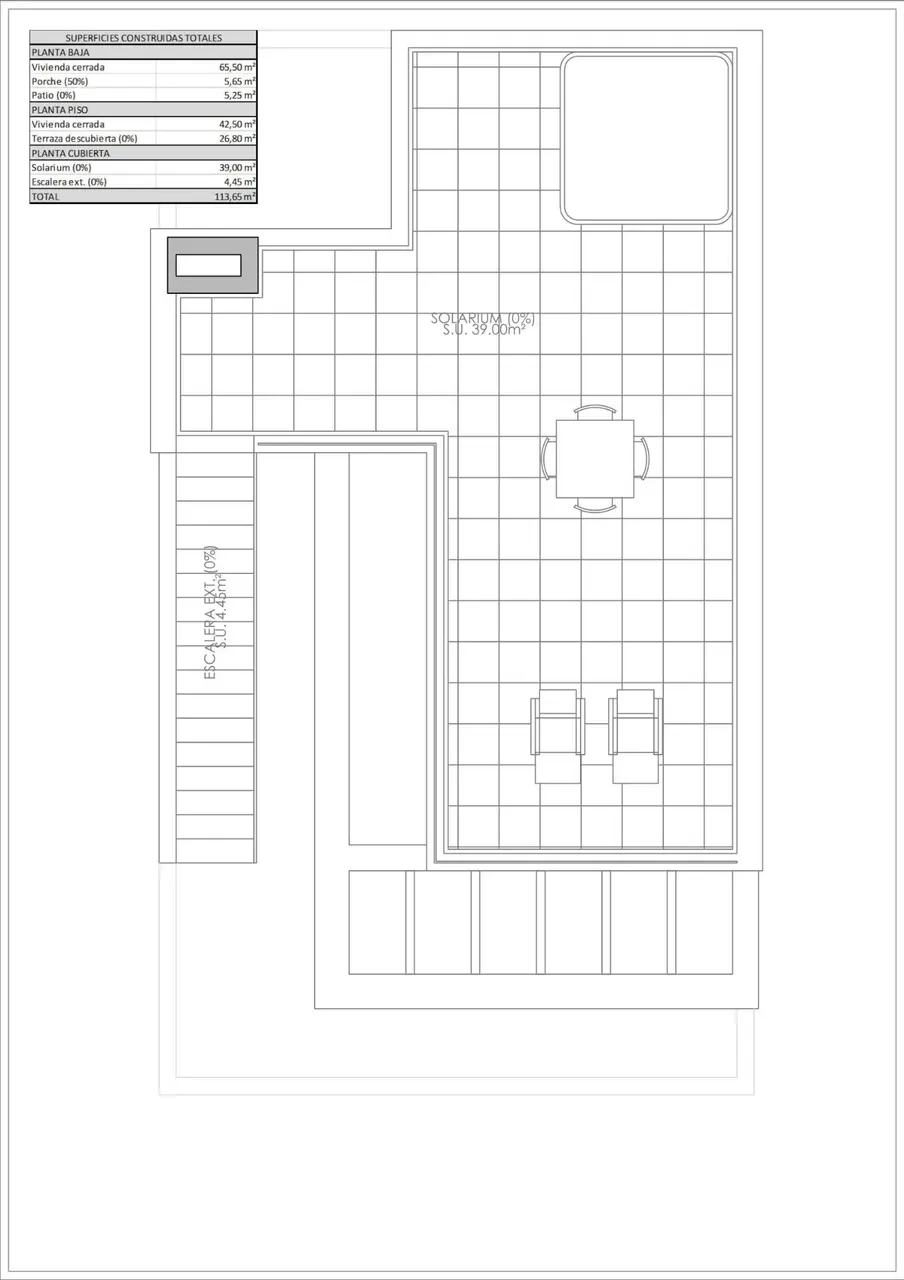
RYNEK PIERWOTNY KAMIENICE W ROJALES Rynek Pierwotny nowoczesne domy i wille w zabudowie bliźniaczej w Rojales. Nieruchomości mają 3 sypialnie, 2 łazienki, toaletę dla gości, kuchnię na otwartym planie z częścią dzienną i bezpośrednim dostępem do tarasu, prywatny ogród z miejscem parkingowym. Opcje solarium i prywatnego basenu za dodatkową opłatą. Rojales to urocza miejscowość ze wszystkimi usługami, takimi jak supermarkety, apteki, banki, restauracje i park przyrody położony bardzo blisko. W pobliżu znajdują się 3 pola golfowe, a plaże oznaczone Błękitną Flagą oddalone są o zaledwie 10 minut jazdy samochodem, podobnie jak parki wodne w pobliskim Rojales i Torrevieja. Lotniska w Alicante i Murcji oddalone są o 45 minut jazdy samochodem.
Dom szeregowy
Orihuela Costa, Hiszpania
-
Sypialnie
3
-
Łazienki
2
-
Basen
Nie






















