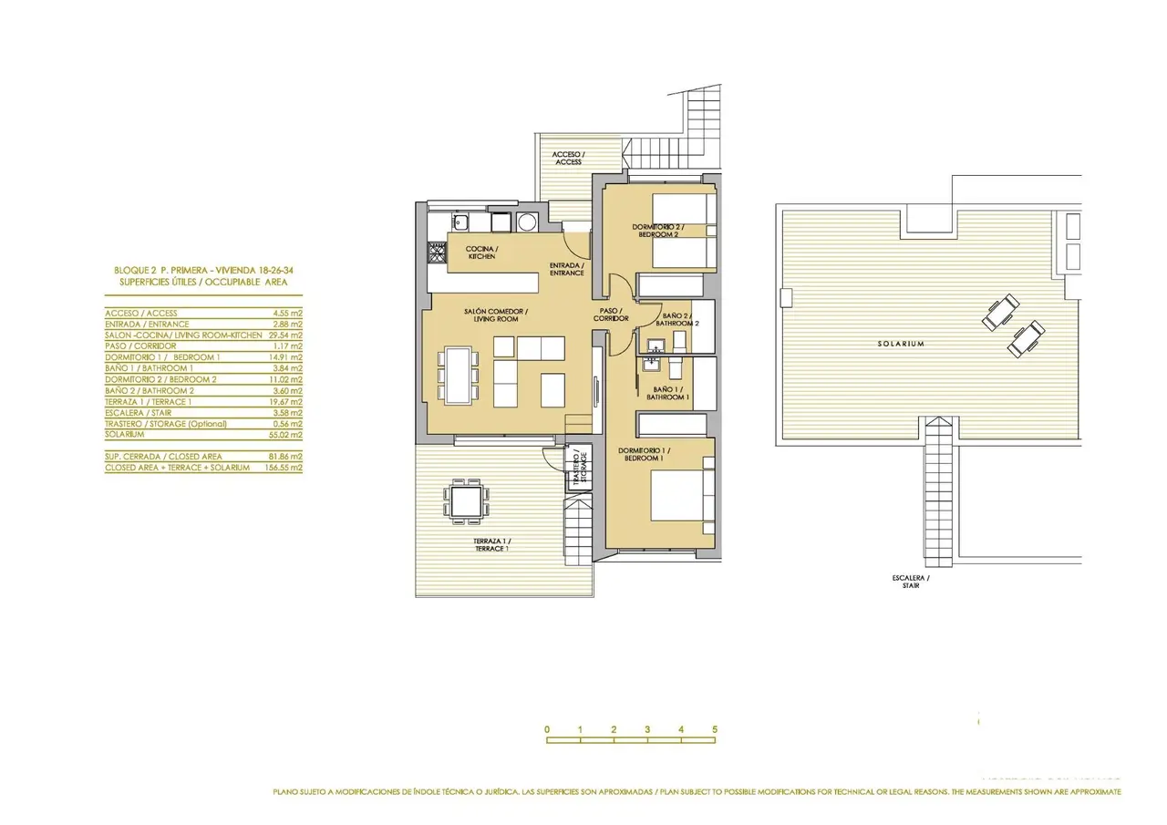
NOWY BUDYNEK MIESZKALNY NA BUNGALOW APARTAMENTY W VISTABELLA New Build kompleks mieszkalny na bungalowów w Vistabella w pobliżu pola golfowego. Kompleks z obiektów komunalnych i basen składa się z 2 i 3 sypialnie bungalowów, na parterze z prywatnym ogrodem i na najwyższym piętrze z prywatnym solarium, kuchnia na otwartym planie z częścią wypoczynkową, wyposażone szafy, taras. Każdy apartament posiada prywatny parking. Magazyn opcji za dodatkową opłatą. W Vistabella Golf jest miejsce dla każdego. Kurs został zaprojektowany tak, aby każdy gracz mógł cieszyć się nim od początku do końca. Jego pofałdowane ulice, strategiczne bunkry lub jeziora to niektóre z cech, które sprawiają, że jest to jeden z najbardziej atrakcyjnych projektów w okolicy, gdzie każde uderzenie jest wyzwaniem i przyjemnością dla zmysłów. The 18 Holes of Vistabella Golf, par 72 i ponad 6.000 metrów długości zostały zaprojektowane zgodnie z wytycznymi nowoczesnych pól z 4 tees o wielkiej amplitudzie w każdym otworze, szerokie fairways i podniesione bunkry. Vistabella Golf dom klubowy & restauracja & lokalne bary & sklepy są w ciągu 5 minut spacerem. Ruchliwe miasto San Miguel de Salinas & Los Montesinos są 5 minut jazdy od hotelu i piękne plaże Blue flag w Guardamar są tylko 15 minut jazdy od hotelu. Lotnisko w Alicante jest 35 minut od hotelu i nowe lotnisko Corvera Murcia jest 45 minut od hotelu.
Dom szeregowy
Pilar de la Horadada, Hiszpania
-
Sypialnie
3
-
Łazienki
3
-
Basen
Tak









































