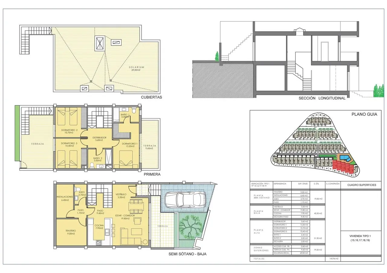
NOWO WYBUDOWANE KAMIENICE W MONFORTE DEL CID Nowe osiedle 54 kamienic i willi w zabudowie bliźniaczej w Monforte del Cid. Przestronne nieruchomości z 3 sypialniami, 2 łazienkami i 1 toaletą. Wszystkie nieruchomości mają prywatny ogród na działce, solarium i miejsce parkingowe. Domy posiadają pełną aerotermię, system energii odnawialnej, który wykorzystuje zewnętrzną energię środowiskową. Każda nieruchomość została starannie zaprojektowana, aby zapewnić maksymalny komfort i funkcjonalność. Ponadto przestronne wnętrza doskonale komponują się z terenami zewnętrznymi. Wyobraź sobie relaks na własnym tarasie, podziwiając pole golfowe i ciesząc się spokojem, na który zasługujesz. Mieszkańcy tej inwestycji będą mieli wyłączny dostęp do szerokiej gamy najwyższej klasy udogodnień. Ciesz się orzeźwiającymi kąpielami we wspólnym basenie, utrzymuj ciało w formie we w pełni wyposażonej siłowni i ciesz się orzeźwiającą kąpielą. Zanurz się w luksusowym stylu życia i ciesz się spokojem, który może zaoferować tylko Alenda Golf. Te nowoczesne i stylowe bungalowy są strategicznie zlokalizowane w oszałamiającym otoczeniu przyrody, w otoczeniu bujnej roślinności i z panoramicznym widokiem na pole golfowe. Prywatna urbanizacja w pobliżu głównych miast prowincji Alicante, 15 minut jazdy od Elche i Alicante, a także lotniska i najlepszych plaż. Osiedle znajduje się w spokojnej okolicy w pobliżu pola golfowego Alenda w Monforte del Cid.
Dom szeregowy
San Pedro del Pinatar, Hiszpania
-
Sypialnie
2
-
Łazienki
2
-
Basen
Tak




















