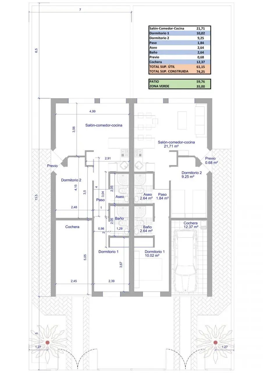
NOWE ZBUDUJ WILLE CZĘŚCIOWO ODDZIELNE W LOS ALCAZARES Te przestronne, dobrze zaprojektowane wille są budowane parami. Każda willa ma swoją prywatną działkę o powierzchni 175 m2 z dużymi tarasami, basenem i ogrodem z trzech stron willi. Wierzymy, że te wille oferują najlepszy stosunek jakości do ceny w Hiszpanii – oferujemy willę w zabudowie bliźniaczej z ponad 100m2 tarasem (możliwość dodania solarium za dodatkową opłatą), basenem lub ogrodem w cenie mieszkania. Wille zostały zaprojektowane z myślą o życiu na świeżym powietrzu. W salonie znajdują się dwoje dużych podwójnych drzwi wychodzących na taras i basen idealny do spożywania posiłków na świeżym powietrzu. Obszerne tarasy z przodu iz tyłu zapewniają właścicielom możliwość opalania się przez cały dzień. Wille posiadają nowocześnie wyposażone kuchnie z możliwością wyboru kolorów szafek kuchennych oraz płytek ściennych w kuchni i łazience, a także podłóg i tarasów. Dwie wygodne dwuosobowe sypialnie mają wbudowane szafy. W jednej sypialni znajduje się łazienka z prysznicem, a w drugiej sypialni znajduje się druga łazienka z prysznicem dla gości. Ogrody otoczone są 40 cm murem z żywopłotem zapewniającym prywatność od frontu z bramkami. Kupujący mogą zdecydować się na zwiększenie wysokości ściany wokół tylnego ogrodu do wysokości 180 cm (5 stóp 10 cali) lub dodać ogrodzenie lub żywopłot, aby zapewnić prywatność. Za dodatkową opłatą dostępny jest ogromny taras słoneczny na dachu ze spiralnymi schodami. Każda willa posiada sporych rozmiarów garaż, który może również służyć jako pracownia lub pracownia hobbystyczna. Baseny lub jacuzzi dostępne są za dodatkową opłatą. Mamy plany wybudowania trzeciej sypialni na dachu willi. Rezydencja willi położonych 1 km od plaży i miasta Los Alcázares, gdzie można uprawiać różne sporty wodne, otoczona kilkoma polami golfowymi. Miasto Cartagena mniej niż 15 minut samochodem i 30 minut od lotniska Murcia Corvera.
Dom szeregowy
La Manga del Mar Menor, Hiszpania
-
Sypialnie
2
-
Łazienki
2
-
Basen
Tak

























