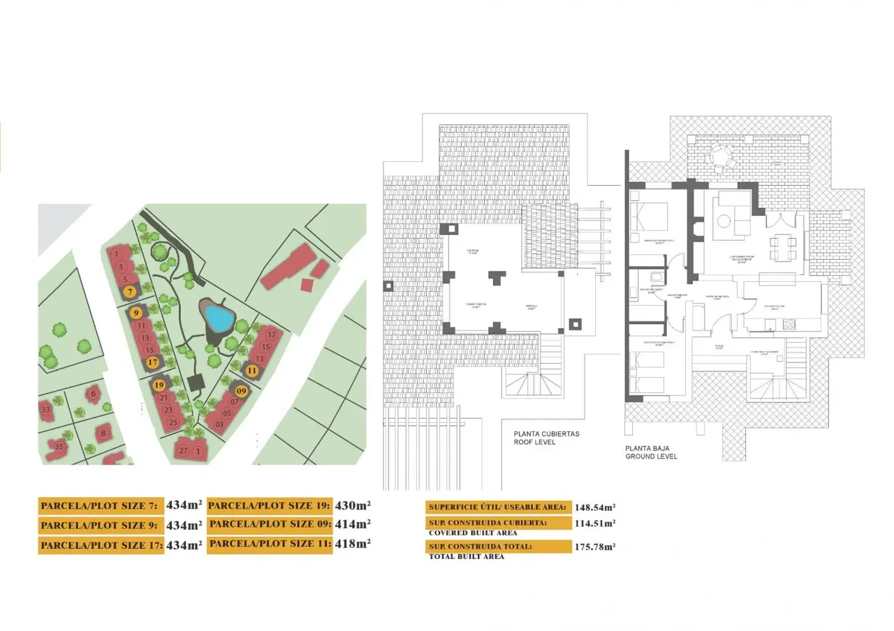
KLUCZ GOTOWY BLIŹNIACZY WILLA W FUENTE ALAMO, MURCIA Rezydencja kamienic, niezależnych i bliźniaczych willi w Fuente Álamo, Murcia. Do wyboru jest siedem różnych modeli domów, zaprojektowanych tak, aby zaspokoić gust każdego. Rustykalne projekty w połączeniu z najwyższej jakości materiałami i skupieniem się na wygodnej przestrzeni życiowej każdy znajdzie coś dla siebie. Mieszkańcy tej prywatnej społeczności pięknych, przestronnych domów będą mogli również cieszyć się własnymi wspólnymi ogrodami i basenami. Ten niezwykły projekt bliźniaczej willi ma 2 sypialnie i 1 łazienkę, niezależną kuchnię, pokój dzienny z drzwiami tarasowymi prowadzącymi na zadaszony ganek i pół zadaszony taras na dachu. Opcje na prywatny basen za dodatkową opłatą. Fuente Álamo de Murcia to miasto i gmina w regionie Murcja, w południowej Hiszpanii. Znajduje się 22 km na północny zachód od Cartageny i 35 km na południowy zachód od Murcji. Miasto leży w basenie Mar Menor otoczonym przez góry Algarrobo, Los Gómez, Los Victorias i Carrascoy. Woda z tych gór spływa do Rambla de Fuente Álamo, a następnie do Mar Menor. Fuente Álamo znajduje się 30 minut od lotniska Murcia – Corvera.
Dom szeregowy
Pilar de la Horadada, Hiszpania
-
Sypialnie
3
-
Łazienki
2
-
Basen
Tak














































