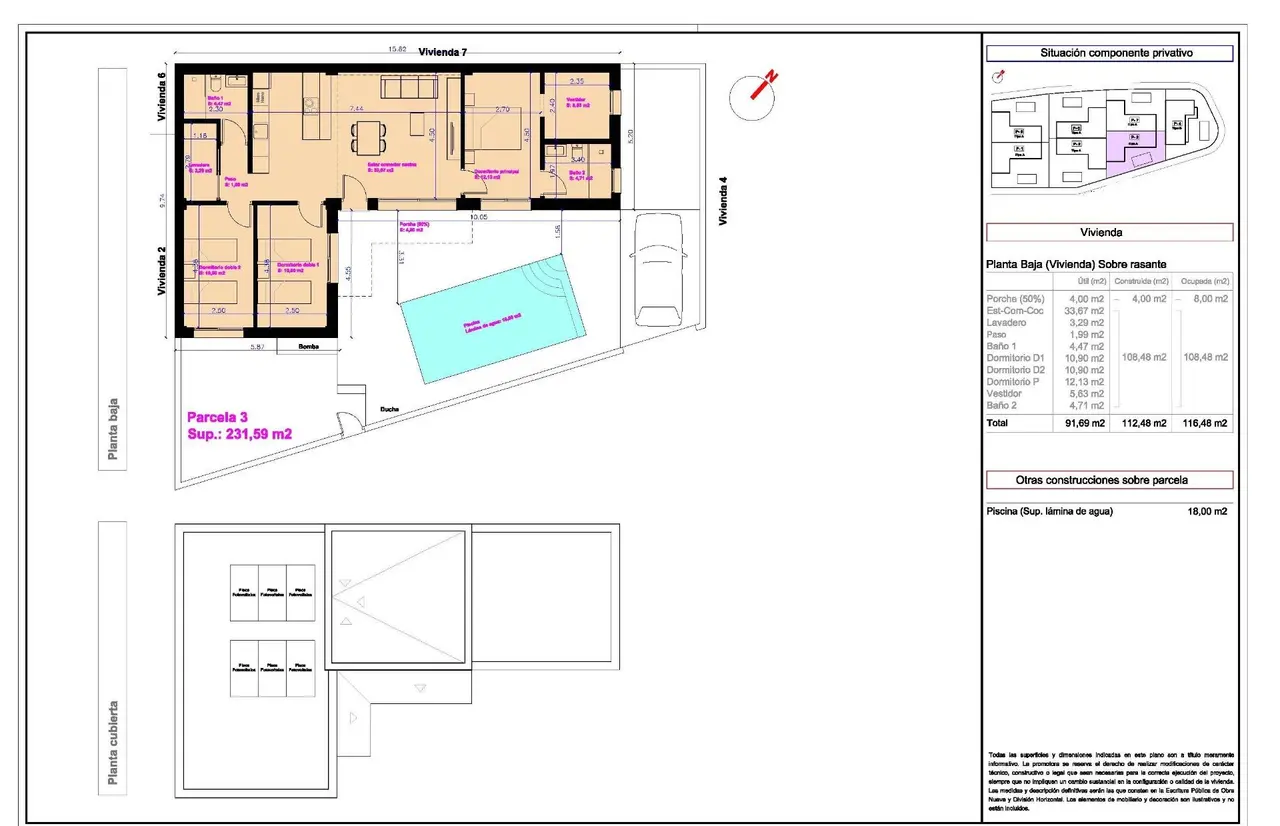
Śródziemnomorski styl życia na jednym poziomie Miasteczko Daya Nueva stanowi idealne połączenie spokojnego i komfortowego stylu życia na wsi oraz tętniących życiem nadmorskich miejscowości Costa Blanca, oddalonych o kilka minut jazdy samochodem. Ta oferta nowych, pół-wolnostojących i wolnostojących willi została zaprojektowana z dbałością o najdrobniejsze szczegóły i wykonana z najwyższą starannością. Wszystkie wille będą miały własny prywatny basen. TWÓJ WŁASNY PRZESTRZEŃ DO ŻYCIA, WSZYSTKO NA JEDNYM POZIOMIE W projekcie zastosowano jasne, świeże i nowoczesne rozwiązania. Położone w małej miejscowości na południu prowincji Alicante. Miejscowość nazywa się Daya Nueva. Nowo wybudowane domy jednorodzinne w nowej części Daya Nueva. Kilka minut spacerem od centrum miejscowości. Nieruchomość składa się z 3 sypialni, 2 łazienek i prywatnego basenu o powierzchni 18 m2. Salon / jadalnia z podwójną wysokością sufitu, otwarta kuchnia, naturalne światło i możliwość dobudowania solarium za dodatkową opłatą. Główna sypialnia ma możliwość dobudowania garderoby i łazienki. Położony w nowej, spokojnej dzielnicy mieszkalnej, około 10 minut od plaży La Marina del Pinet i Guardamar del Segura. Łatwy dostęp do autostrady A-70 i około 25 minut od międzynarodowego lotniska w Alicante.
Dom szeregowy
Marbella, Hiszpania
- 
					                Sypialnie 4 
- 
					                Łazienki 4 
- 
								Basen Tak 

 
								































 
					    					    