Luksusowe apartamenty w nowym budownictwie w zachodniej części Marbelli – eleganckie życie nad morzem w pobliżu Puerto Banús Przełomowa inwestycja w nowej dzielnicy zachodniej Marbelli Odkryj ekskluzywny projekt mieszkaniowy położony w zachodniej części Marbelli, nowo zaprojektowanej dzielnicy, która wyznacza nowe standardy zrównoważonego życia miejskiego na Costa del Sol. Położona pomiędzy Nueva Andalucía i San Pedro de Alcántara, inwestycja znajduje się zaledwie 1,4 km od plaży i kilka minut jazdy samochodem od prestiżowej mariny Puerto Banús. Dzielnica Marbella West łączy w sobie rozległe tereny zielone, usługi publiczne, luksusową gościnność, najlepsze szkoły i niską zabudowę, która zachowuje widoki i naturalne światło — oferując styl życia łączący wyrafinowanie i spokój. Ekskluzywne apartamenty o nowoczesnym designie Ta zamknięta społeczność obejmuje 101 nowych rezydencji, od eleganckich studiów po przestronne apartamenty z 4 sypialniami. Każdy dom został starannie zaprojektowany, aby zmaksymalizować dostęp naturalnego światła i możliwość spędzania czasu na świeżym powietrzu, i posiada otwarte wnętrza oraz duże tarasy. Dostępne typy nieruchomości: Apartamenty na parterze z prywatnymi ogrodami, a niektóre z basenami w stylu plażowym Luksusowe penthouse’y z panoramicznymi tarasami na dachu i prywatnymi basenami Wszystkie lokale charakteryzują się wysokiej jakości wykończeniem oraz jasnym i przestronnym rozkładem. Najwyższej klasy udogodnienia w stylu kurortowym Każdy element inwestycji został stworzony z myślą o poprawie samopoczucia i komforcie mieszkańców. Mieszkańcy będą mogli korzystać z szerokiej gamy luksusowych udogodnień wspólnych, w tym: Basen bez krawędzi na dachu z panoramicznym widokiem Basen w stylu plażowym z piaskiem na poziomie ogrodu Kryty basen z podgrzewaną wodą i w pełni wyposażoną siłownią Strefa spa z sauną i szatniami Klub towarzyski i przestrzeń coworkingowa Całodobowa ochrona, concierge i recepcja Śródziemnomorskie ogrody krajobrazowe Podziemny parking z stacjami ładowania pojazdów elektrycznych i prywatnymi schowkami Doskonała lokalizacja z doskonałym połączeniem komunikacyjnym Strategicznie położony projekt oferuje doskonały dostęp do najważniejszych atrakcji Marbelli: Puerto Banús: 4 km San Pedro de Alcántara: 2 km Nueva Andalucía: 3 km La Quinta Golf: 4,5 km Guadalmina Golf: 5 km Centrum Marbelli: 10 km Lotnisko w Maladze: 60 km (ok. 40 minut bezpośrednim dojazdem autostradą) Inteligentna inwestycja w samym sercu Costa del Sol Ta inwestycja to coś więcej niż tylko miejsce zamieszkania — to styl życia. Niezależnie od tego, czy szukasz domu na cały rok, miejsca na wakacje, czy inwestycji o wysokim potencjale, ten ośrodek zapewnia elegancję, spokój i wygodę w jednej z najbardziej obiecujących nowych dzielnic Marbelli. Skontaktuj się z nami już dziś, aby umówić się na prywatną wizytę i zapewnić sobie miejsce w tej ekskluzywnej nowej inwestycji.
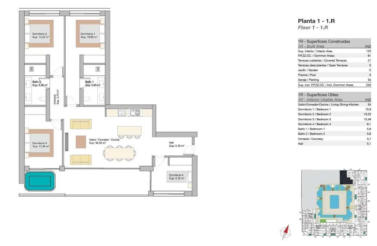
Apartament
Marbella, Hiszpania
-
Sypialnie
2
-
Łazienki
2
-
Basen
Tak


















