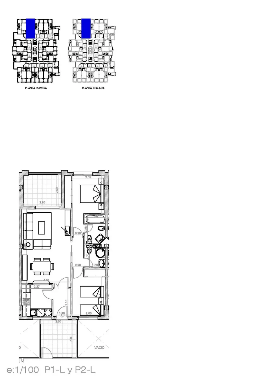
Odnowiony kompleks mieszkalny w Lomas de Cabo Roig – odnowione apartamenty Apartamenty w doskonałej lokalizacji Odkryj tę wyjątkową okazję do posiadania odnowionego mieszkania w Lomas de Cabo Roig, poszukiwanym obszarze w Orihuela Costa. Ten kompleks mieszkaniowy, pierwotnie zbudowany w 2008 roku, przechodzi renowację niektórych jednostek i zostanie oddany do użytku w czerwcu 2025 roku. Dom pokazowy jest dostępny do oglądania, co pozwala zobaczyć wysokiej jakości wykończenia z pierwszej ręki. Opcje nieruchomości dostosowane do każdych potrzeb Inwestycja oferuje 27 odnowionych mieszkań o różnych układach: Mieszkania z 1 i 2 sypialniami, idealne na domy wakacyjne lub inwestycje. Apartamenty na parterze z prywatnymi ogrodami, idealne do życia na świeżym powietrzu. Apartamenty na średnim piętrze z przestronnymi tarasami, idealne do korzystania ze śródziemnomorskiego klimatu. Penthouse’y z prywatnymi solariami, oferujące otwarte widoki i maksymalną prywatność. Każdy dom jest dostarczany z ekranami prysznicowymi w łazienkach i w pełni wyposażonymi kuchniami ze sprzętem AGD, zapewniając nabywcom gotowe rozwiązanie. Ekskluzywne udogodnienia dla społeczności Kompleks mieszkaniowy został zaprojektowany z myślą o komforcie i relaksie: Wspólny basen otoczony pięknymi ogrodami krajobrazowymi. Winda zapewniająca łatwy dostęp do wszystkich pięter. Opcjonalne podziemne miejsca parkingowe dostępne za dodatkową opłatą. Bezkonkurencyjna lokalizacja w Orihuela Costa Lomas de Cabo Roig to prestiżowa dzielnica mieszkaniowa położona zaledwie 2 km od wybrzeża Cabo Roig, gdzie znajdują się jedne z najpiękniejszych plaż w Orihuela Costa. Okolica jest dobrze skomunikowana drogowo i oferuje szeroki zakres usług, w tym sklepy, restauracje, supermarkety i centra handlowe. Odległości do najważniejszych atrakcji: Plaże Cabo Roig i Campoamor – 5 minut jazdy. Centrum handlowe Zenia Boulevard – 5 km. Pole golfowe Villamartín – 4 km. Lotnisko Alicante – 30 minut jazdy samochodem. Lotnisko Murcja-Corvera – 1 godzina jazdy samochodem. Mądra inwestycja na Costa Blanca Dzięki doskonałej lokalizacji, w pełni odnowionym apartamentom i najwyższej klasy udogodnieniom, inwestycja ta jest idealną okazją do inwestycji, wakacyjnego życia lub stałego zamieszkania. Nie przegap tej wyjątkowej szansy na posiadanie domu w jednym z najbardziej pożądanych obszarów Costa Blanca w bezkonkurencyjnej cenie. Skontaktuj się z nami już dziś, aby uzyskać więcej informacji lub umówić się na wizytę!
Apartament
Torrevieja, España
-
Sypialnie
3
-
Łazienki
1
-
Basen
Nie

























