RYNEK PIERWOTNY KOMPLEKS MIESZKANIOWY W MARBELLI Rynek Pierwotny unikalny kompleks mieszkaniowy składający się z 39 apartamentów i dwupoziomowych budynków z 2, 3 i 4 sypialniami położony w Marbelli, w uprzywilejowanej części Altos de Los Monteros. Natura, wymarzone widoki, spokój, luksusowa lokalizacja… Odkryj nowy styl życia w tym wyjątkowym miejscu. Istnieją dwa słowa, które doskonale oddają innowacyjną koncepcję tego kompleksu mieszkaniowego: światło i widoki. Projekt 39 apartamentów i dwupoziomowych penthouse’ów z solarium tego ekskluzywnego kompleksu mieszkaniowego obraca się wokół tych dwóch słów. Dzięki wyjątkowej lokalizacji, w górnej części Los Monteros, zaledwie 10 minut od centrum Marbelli, znajdziesz tu spokój i życie w kurorcie, o którym zawsze marzyłeś. Jeśli chodzi o dom, najważniejsza jest przestrzeń. Właśnie dlatego zaprojektowaliśmy przestronne, otwarte przestrzenie mieszkalne z kuchniami na otwartym planie i wysokiej jakości udogodnieniami w łazienkach i sypialniach. Poczucie przestronności w pokojach jest podkreślone przez ciągłość między tarasem a salonem, który można dostosować do własnych upodobań, jeśli chcesz. Wyobraź sobie, że po długim dniu wracasz do domu i relaksujesz się w spa. Albo uwolnić adrenalinę i spalić kalorie w strefie fitness z odkrytym tarasem. Lub wypić drinka w barze przy basenie. Wyobraź sobie, że nie musisz opuszczać kompleksu mieszkalnego, aby pracować i możesz to zrobić w strefie coworkingowej. Morze, góry, przyroda, kultura, wioski ukryte wśród dębów szypułkowych… To wszystko i wiele więcej oferuje Costa del Sol. Ponad 320 słonecznych dni w roku sprawia, że ci, którzy je odwiedzają, zawsze chcą tu wrócić. Costa del Sol jest znane jako Costa del Golf wśród miłośników golfa, dzięki ponad 40 polom golfowym. Połowa z nich znajduje się w Marbelli.
Apartament
Torrevieja, España
-
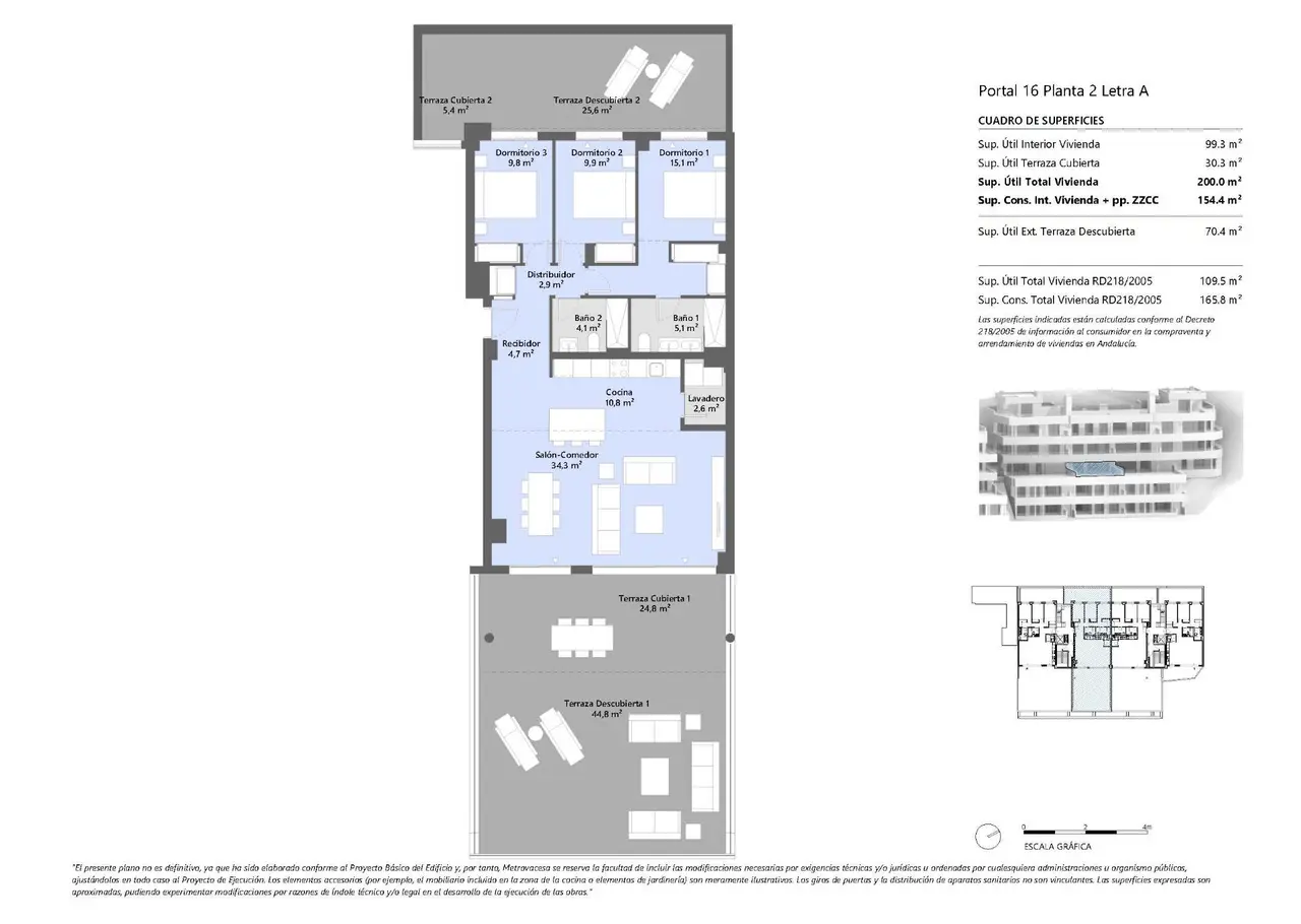
Sypialnie
3
-
Łazienki
2
-
Basen
Nie


































