RYNEK PIERWOTNY KOMPLEKS MIESZKALNY W LA NUCIA Rynek Pierwotny kompleks mieszkalny z apartamentami i penthouse’ami z odkrytym basenem komunalnym, parkingiem, przechowalnią, windą, siłownią, wspólnym spa z krytym basenem z podgrzewaną wodą, sauną i jacuzzi w La Nucia. Nowoczesne nieruchomości z 2 i 3 sypialniami, wszystkie z 2 łazienkami, kuchnią na otwartym planie z przestronnym salonem, wbudowanymi szafami, tarasem, podziemnym miejscem parkingowym. Penthousy mają prywatne solaria. Doskonałość w awangardowej architekturze, wykwintne wykończenia i wysokiej klasy usługi, wymarzona urbanizacja dla osób poszukujących najwyższego poziomu komfortu i wyróżnienia. Wnętrza, które łączą elegancki design i nowoczesne wyrafinowanie, tworzą przestrzenie, które zmieniają każdy dzień w wyjątkowe doświadczenie komfortu i dobrego samopoczucia. Niemiecka designerska kuchnia, Burger lub podobna, z blatem Silestone, w pełni wyposażona. Urządzenia Siemens lub podobne. Płyta indukcyjna, wentylator wyciągowy, piekarnik, lodówka i zmywarka zintegrowane z urządzeniami. Wzmocnione drzwi wejściowe do nieruchomości z zamkiem bezpieczeństwa wykończone lakierowaną boazerią pasującą do stolarki wewnętrznej. Możliwość zamontowania zamka z pilotem zdalnego sterowania ze smartfona lub tabletu. Modułowe szafy z drzwiami skrzydłowymi lub przesuwnymi lakierowanymi w celu dopasowania do reszty stolarki, w tym bagażnik, szuflady i drążek do zawieszania. Nieruchomość będzie przygotowana do podłączenia szybkiego internetu. W łazienkach będzie elektryczne ogrzewanie podłogowe o niskim zużyciu energii. Wideodomofon będzie elektroniczny z kolorowym obrazem i będzie miał zintegrowane zdalne sterowanie z telefonu lub tabletu. Klimatyzacja Samsung. Każdy pokój będzie miał własną maszynę wewnętrzną i niezależne sterowanie. Klimatyzacja będzie miała zdalne sterowanie. Może być sterowana z telefonu lub tabletu. Wykonana zostanie kompletna instalacja systemu klimatyzacji, wyposażona w pompę ciepła zapewniającą zarówno chłodzenie, jak i ogrzewanie. Zastosowane zostaną również kanały wykonane z włókna szklanego. Jednostki wewnętrzne zostaną umieszczone w suficie podwieszanym w łazienkach i korytarzu, natomiast jednostka zewnętrzna zostanie zainstalowana w miejscu wyznaczonym w projekcie. Wentylacja. Instalacja wewnętrznej wymiany powietrza w mieszkaniach z gniazdami wyciągowymi w łazienkach i kuchni oraz zegarem do programowania harmonogramu. Basen do użytku wspólnego z chlorowaniem soli i automatyczną kontrolą pH i chloru. W piwnicy znajdzie się sala gimnastyczna, kryty basen z podgrzewaną wodą, jacuzzi, sauna, łaźnia parowa, chromoterapia i przebieralnie z łazienkami. Duże tarasy i ogrody z rodzimymi roślinami do wielu zastosowań w obszarze wspólnym. Obwód działki zostanie obsadzony roślinami, które w miarę wzrostu stworzą prywatną atmosferę w ogrodzeniu. Obszary wspólne zostaną objęte systemem nadzoru wideo. Położona w uprzywilejowanej lokalizacji, między Nucia i Altea, ta rezydencja cieszy się wyjątkowym otoczeniem i doskonałymi usługami w ramach urbanizacji.
Apartament
Orihuela Costa, España
-
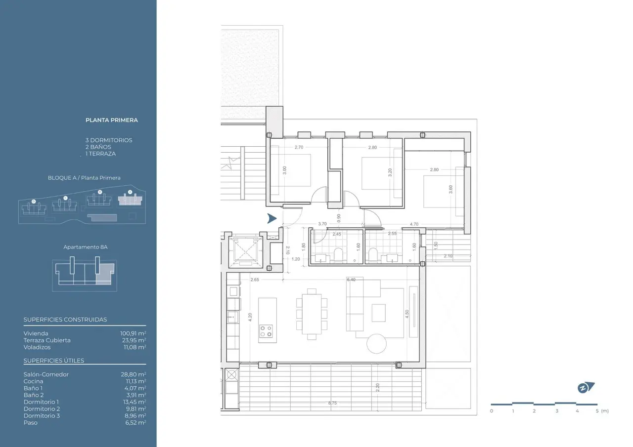
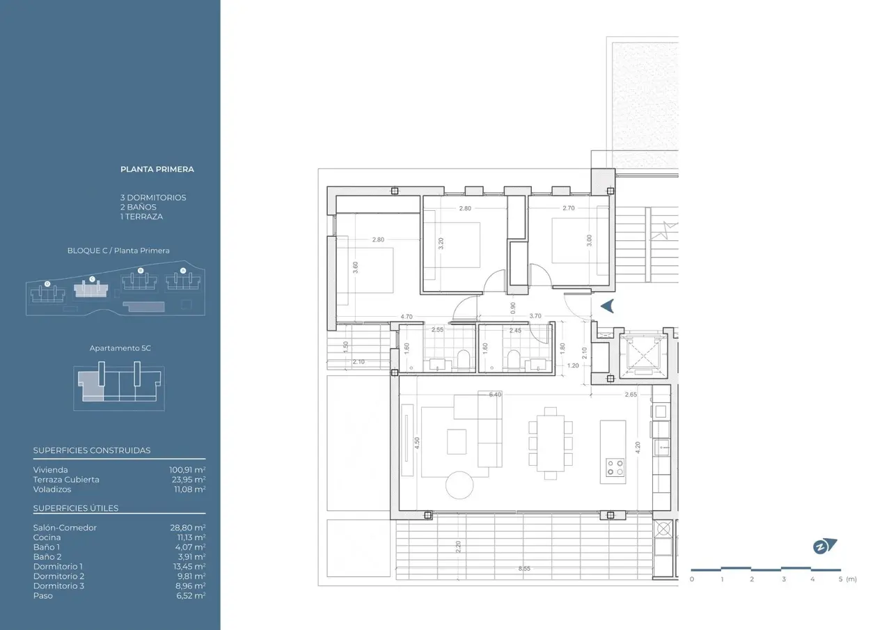
Sypialnie
2
-
Łazienki
2
-
Basen
Nie
























