Ekskluzywne, zrównoważone rezydencje w El Higuerón na Costa del Sol Wyjątkowa inwestycja otoczona naturą Odkryj tę ekskluzywną nową inwestycję w El Higuerón na Costa del Sol, obejmującą 233 nowoczesne rezydencje otoczone 7000 m² terenów zielonych. Projekt, idealnie położony między Malagą a Fuengirolą, oferuje wyjątkowe połączenie luksusu, zrównoważonego rozwoju i śródziemnomorskiego stylu życia. Pierwsza faza obejmuje 71 domów: 21 apartamentów na parterze z prywatnymi ogrodami i basenami, 34 luksusowe apartamenty na środkowych piętrach z przestronnymi tarasami oraz 16 penthouse’ów z prywatnymi basenami (niektóre z nich z solarium), z których roztacza się najlepszy widok na morze na Costa del Sol. Zrównoważone i energooszczędne życie Ta pionierska inwestycja na nowo definiuje koncepcję nowoczesnego życia mieszkaniowego, stawiając na ekologiczny projekt i niski wpływ na środowisko. Projekt, zbudowany zgodnie z normami certyfikacji BREEAM, obejmuje systemy energii odnawialnej, technologię aerotermiczną oraz jeden z pierwszych w regionie systemów recyklingu szarej wody w budynkach mieszkalnych. Efektem jest innowacyjna, samowystarczalna społeczność, która łączy komfort, technologię i odpowiedzialność za środowisko. Eleganckie domy z funkcjami premium Do wyboru są apartamenty z 1, 2 lub 3 sypialniami, każdy zaprojektowany z otwartym układem i dużą ilością naturalnego światła. Wszystkie domy posiadają 2 miejsca parkingowe, schowek, ogrzewanie podłogowe w wybranych obszarach, systemy domotyki, w pełni wyposażoną kuchnię, klimatyzację i ładowarki do pojazdów elektrycznych. Ekskluzywne obszary wspólne i udogodnienia wypoczynkowe Mieszkańcy mają do dyspozycji szeroki wachlarz wysokiej klasy udogodnień wspólnych, w tym: Baseny dla dorosłych i dzieci Sauna i strefa wellness Sad z drzewami owocowymi, miejscami na piknik i grill Centrum biznesowe i konferencyjne oraz strefa wydarzeń Całodobowa obsługa konsjerża Bezpłatny transport dla mieszkańców dla dodatkowej wygody Ponadto właściciele mają dostęp do 5-gwiazdkowych usług Higuerón Resort i Hilton Curio Collection Hotel, co zapewnia komfortowy i ekskluzywny styl życia. Doskonała lokalizacja na Costa del Sol Położona w najwyżej położonej części El Higuerón, zaledwie 2 minuty od Higuerón Resort i 4 minuty od Benalmádena, Mijas Pueblo i Fuengirola, inwestycja oferuje doskonałe połączenia komunikacyjne: Plaża: 2 km Międzynarodowe lotnisko w Maladze: 10 km (10 minut samochodem, 30 minut pociągiem) Pola golfowe: 10–20 km Puerto Marina i centra handlowe: 6–8 km Żyj w stylu śródziemnomorskim Ten kompleks mieszkaniowy to coś więcej niż dom — to miejsce, w którym można realizować swój styl życia. Dzięki zrównoważonemu projektowi, luksusowym udogodnieniom i doskonałej lokalizacji oferuje idealną równowagę między spokojem a dostępnością na Costa del Sol. Skontaktuj się z nami już dziś, aby umówić się na wizytę i zapewnić sobie wymarzony dom w El Higuerón.
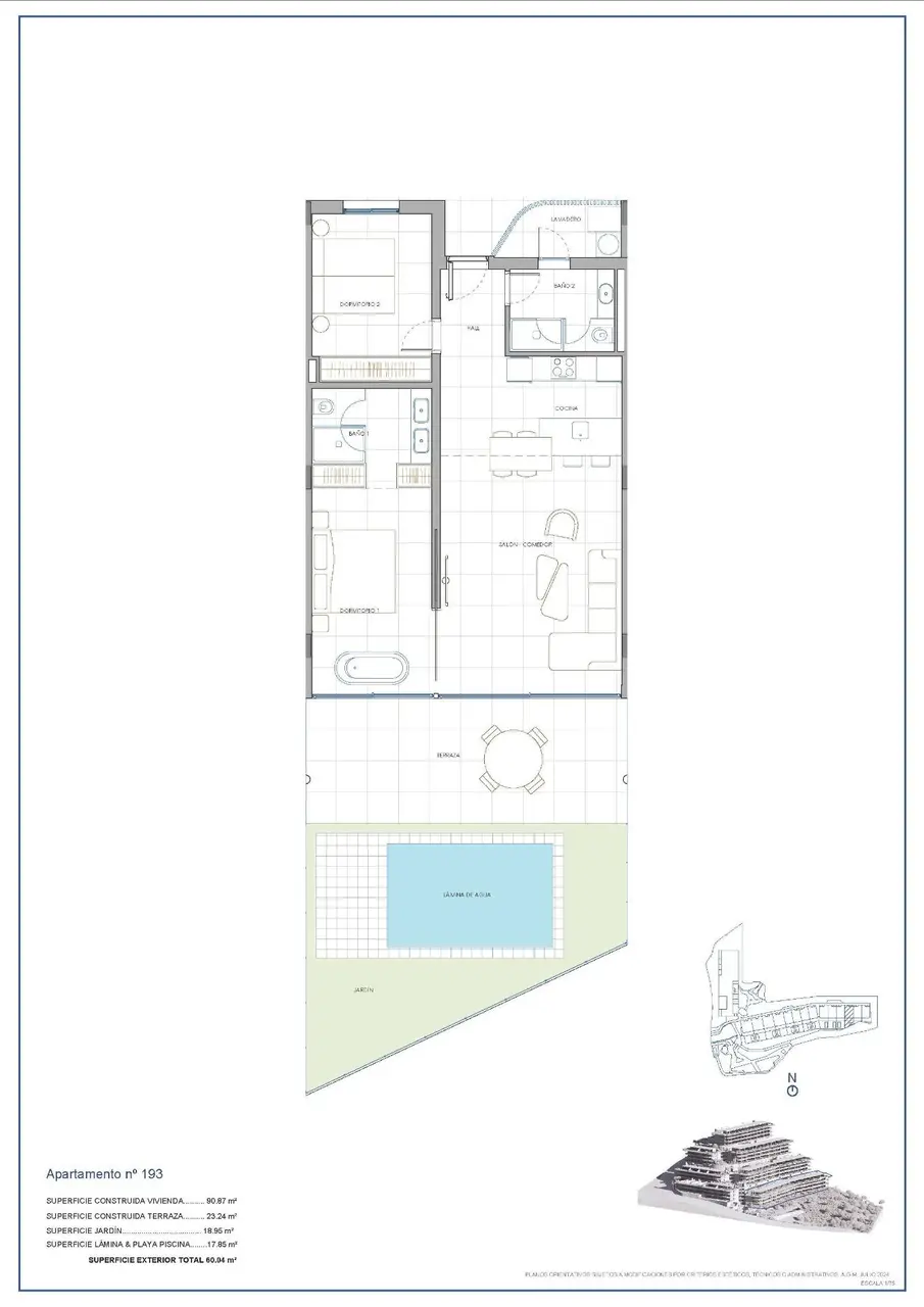
Apartament
Benalmádena, Hiszpania
-
Sypialnie
3
-
Łazienki
2
-
Basen
Tak
















