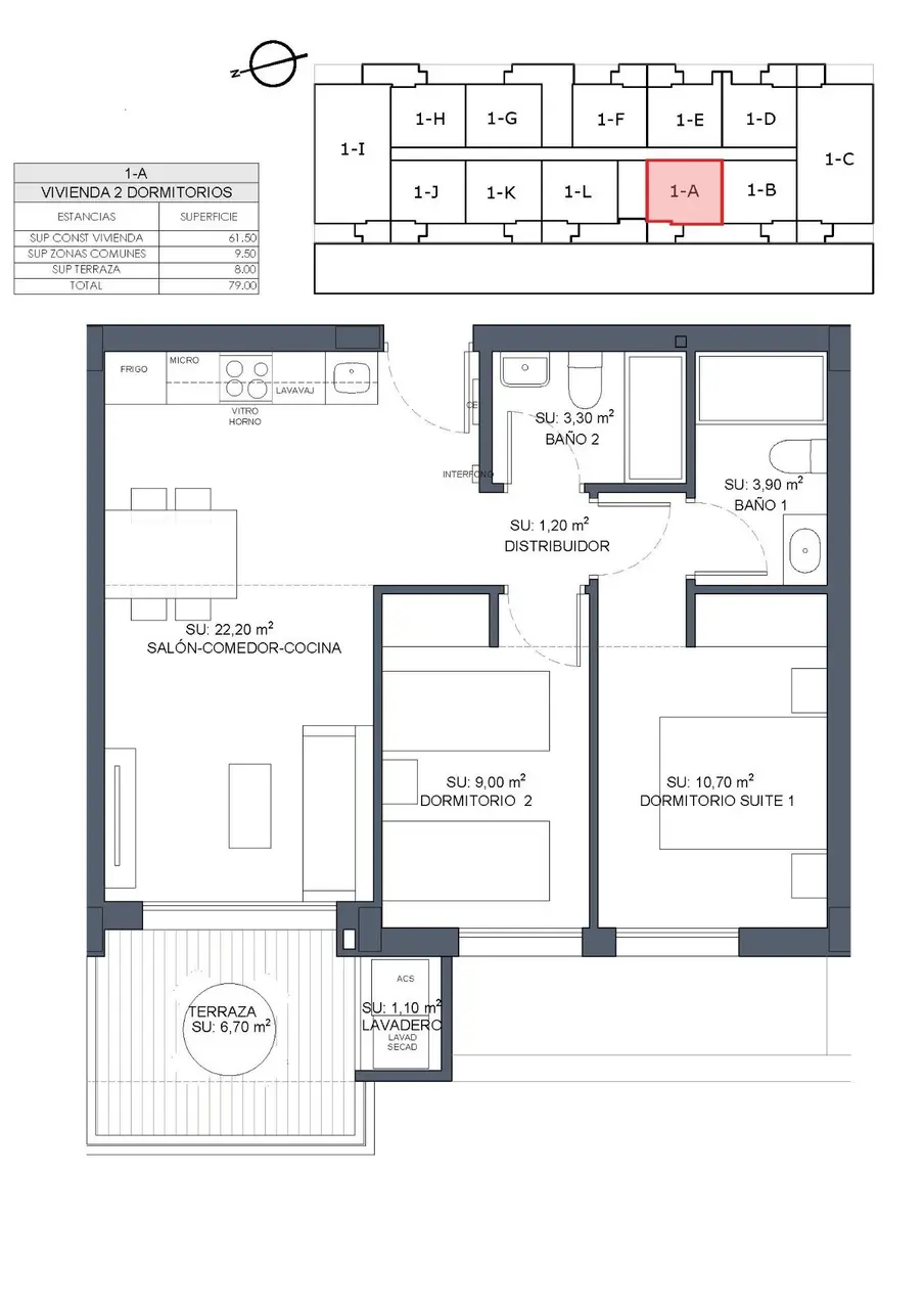
RYNEK PIERWOTNY BUDYNEK MIESZKALNY W BENIJOFAR Rynek Pierwotny budynek mieszkalny ze wspólnym basenem na dachu położony w centrum uroczej miejscowości Benijofar. Do wyboru są nowoczesne apartamenty z tarasami lub penthousy z solarium. Nowo wybudowane nowoczesne nieruchomości z kuchnią i salonem na otwartym planie, 2 i 3 sypialniami, 2 łazienkami, tarasami. Opcje podziemnego miejsca parkingowego za dodatkową opłatą. Benijofar to urocza wioska z uroczym kościołem i atrakcyjnym placem położonym w głębi lądu na południowym wybrzeżu Costa Blanca, w pobliżu kurortów turystycznych Guardamar del Segura i Torrevieja. Benijofar jest również popularnym miejscem na letnie wakacje, ponieważ jest wystarczająco blisko nadmorskich kurortów, a jednocześnie wystarczająco cicho, aby móc uciec od tego wszystkiego. W pobliżu znajduje się kilka pól golfowych, a także parki wodne w pobliskim Rojales i Torrevieja. Najbliższe i najlepsze plaże w Benijofar znajdują się około piętnastu minut jazdy samochodem i są jednymi z najlepszych plaż na południowym wybrzeżu Costa Blanca, w Guardamar del Segura i Torrevieja. Istnieją również regularne połączenia autobusowe z Benijofar do Guardamar del Segura i Torrevieja z łatwym dostępem do plaż. 20 minut jazdy do lotniska w Alicante z regularnymi lotami do całej Europy.
Apartament
Guardamar del Segura, España
-
Sypialnie
2
-
Łazienki
2
-
Basen
Nie














